Передвижные модели
Гидравлическая система способствует легкой работе устройства и делает ремонт более комфортным для мастера.

Самая популярная разновидность гаражных кранов – складные модели. Их отличает большая грузоподъемность и умеренная стоимость. Некоторые умельцы сооружают подобные конструкции самостоятельно, но это всегда риск. Самоделки небезопасны и могут подвести в любой момент.
Основные преимущества складных передвижных кранов:
- наличие специальные блоков-усилителей для контроля давления в цилиндре;
- быстрое поднятие груза;
- работа не требует значительных физических усилий со стороны оператора;
- при подъеме слишком тяжелой детали происходит срабатывание специальных предохранителей, которые стопорят весь механизм.
Самые популярные модели кранов изготавливают из обычных металлических профилей и труб разного диаметра. Опоры оснащаются шасси для маневренности. Конструкция двигается с несколькими парами колес, что позволяет подкатить ее к автомобилю с любой стороны и под любым углом.
Особенности эксплуатации гаражного крана
Гаражный кран оснащён удобными колёсами, с помощью которых его подкатывают к автомобилю или грузу, который необходимо поднять и переместить. Опустив стрелу и выполнив захват, можно удерживать деталь в требуемом положении или перемещать по автосервису, не прикладывая для этого сверхусилий.
Важно! Максимальная грузоподъёмность крана гаражного указывается при полностью задвинутой стреле. При её выдвижении, она снижается
Также учитывайте, что чем больше выдвинута стрела, тем меньше его устойчивость. Поэтому ни в коем случае не перегружайте оборудование. От этого непосредственно зависит безопасность сотрудников, которые работают с автомобилем. Да и повреждение дорогостоящей детали или кузова машины – тоже не самое приятное, что может случиться.
Качественные гаражные краны, оснащены специальными предохранительными клапанами, которые обеспечивают блокировку цилиндра в случае, если максимально допустимый вес выше грузоподъёмности агрегата. Помимо этого, часто дополнительно используются блоки усиления давления. Они обеспечивают подъём груза гораздо быстрее.
Среди моделей, на которые стоит обратить внимание, выбирая гаражный кран, гидравлический агрегат итальянского производителя ОМА W107SE OM A586, грузоподъёмностью 500 килограммов. Он оснащён поворотным механизмом на 180 градусов, что делает его эксплуатацию ещё удобнее
При собственной высоте в 160 сантиметров, обеспечивает подъём на 207 сантиметров. А максимальный вылет его стрелы составляет 120 сантиметров. Её можно зафиксировать в 4х положениях вылета. Гаражный кран оснащён предохранительным клапаном, который срабатывает если нагрузка составляет 590 килограмм.
В категории гаражных кранов грузоподъёмностью до 1000 килограмм, по соотношению цена-качество, выделяется модель TEMP T62201. В автосервисе, основным пунктом его использования, является выемка и установка двигателя. Максимальный вылет стрелы, который позволяет выполнить данный кран – 1520 миллиметров. Стоит учитывать, что максимальная нагрузка при этом должна быть существенно снижена. При этом, максимальная высота подъёма составляет 2250 миллиметров. Это позволяет использовать его при выполнении различных работ, в том числе и в яме или на эстакаде.
При наличии достаточного свободного места в автосервисе, гаражный кран может находиться готовым к эксплуатации постоянно. Но зачастую – его складывают для удобства и экономии пространства. В сложенном виде он храниться сколь угодно долго, без потери своих эксплуатационных качеств. А раскладывается быстро и легко.
Комментарии
Рекомендованные статьи
1 сентября 2023
Новые правила фотовидеофиксации
27 апреля 2021
Непредвзятая чистка
29 января 2016
Ошибки при ремонте пластиковых деталей
4 мая 2022
АвтоВАЗ: в поисках утраченных комплектующих
3 июня 2021
Как рассчитать реальную стоимость лизинга?
2 декабря 2018
Hola. Новые горизонты в России
Гидравлический домкрат
В основу гидравлических домкратов заложены свойства известной из курса физики гидравлической машины. Распространённые представители этого типа — бутылочные и подкатные домкраты.
Бутылочные домкраты состоят из корпуса, выдвижного поршня и рабочей жидкости (масла). В силу простоты конструкции это надёжные помощники, следует лишь время от времени их обслуживать. Бутылочные домкраты поднимают от одной до нескольких десятков тонн и могут применяться при ремонте как легковых, так и грузовых автомобилей. Минус бутылочных домкратов — высокий уровень начального подъёма, то есть автомобиль с небольшим дорожным просветом поднять будет сложно.
Подкатной домкрат — гаражное, а правильнее сказать, сервисное оборудование, никак не предназначенное для работы в поле. Этот домкрат оснащён колёсами и имеет низкий корпус, который легко разместить под автомобилем. Также следует отметить большую подъёмную площадку, не продавливающую дно автомобиля. Минусы такого домкрата плавно вытекают из плюсов: наличие колёс говорит о возможности использования домкрата исключительно на ровной поверхности. Однако для проведения ремонтных работ-лучший подкатнойвариант. пневмодомкрат.
Конструкция из подручных средств для работ в гараже
Такой самодельный подъемник особенно нужен тем, кто производит ремонт автомобилей, для снятия или установки тяжелых узлов и агрегатов машины.

Сборка крана производится со станины, которая сваривается из трубы, железного профиля, уголков. Проще их установить крест-накрест, так как такое расположение обеспечивает большую устойчивость крана. На края крепятся колесики для удобства передвижения по гаражу.
Вертикально по центру из тех же материалов устанавливается мачта. В нижней части привариваются укосины, которые идут к станине для укрепления конструкции. Гаражный кран делается невысоким, необходимо учитывать пространство гаража. К станине одним краем крепится стрела из железного профиля, так чтобы она могла свободно перемещаться вверх на 90 градусов параллельно полу.
Стрела изготавливается телескопическая, поэтому вовнутрь нее устанавливается еще один профиль с меньшими размерами, но так, чтобы внутри не было большого люфта. На первом, более толстом колене делается фиксатор для зажима выдвинутого второго колена и усиливаются края в том месте, где выходит второе более тонкое колено.
Вверху вертикальной мачты рассчитывается расстояние и устанавливается упор под гидравлический домкрат. На стреле тоже нужно сделать под него упор. Крюк крепится к концу второго колена стрелы. В этом колене делаются отверстия под фиксатор, расположенный на первом колене.
После полного закрепления всех соединений на площадку вертикальной мачты устанавливается гидравлический домкрат, который подъемным пятаком упирается в упор, расположенный на стреле. При помощи ручки приводится в действие подъемник, поднимающий стрелу.

Принцип работы гаражного крана
Принцип работы гаражного крана довольно прост, ведь в состав этого приспособления входит не так много деталей.
Так, гаражный кран состоит из:
- Рамы, которая используется для опоры;
- Стойки, расположенной вертикально;
- Помпы на гидравлическом приводе, с помощью которой осуществляется подъем груза;
- Стрела, которая может выдвигаться на нужную длину.
Для приведения гаражного крана в действие нужно применить силу. Груз цепляется к тросу или цепи с помощью специального крюка, затем оператор начинает осуществлять подъем этого груза с помощью домкрата.
Вот, собственно и весь принцип действия гаражного крана. Единственное, при использовании этого устройства также рекомендуется использовать противовес для повышения его устойчивости.
Типы гидравлических кранов
Всего существует четыре типа гаражных кранов: складные, складные, раздвижные и стационарные.
Стационарный гидравлический кран отличается от других тем, что он крепится к полу гаража и имеет поворотный рычаг. Такой кран удобен при снятии крупных деталей автомобиля, например коробки передач, когда для поворота автокрана не так много свободного места: нужно просто повернуть стрелу в сторону. Обратной стороной стационарного крана является необходимость просверлить пол и зарезервировать толщину бетона для его установки.
Остальные три типа кранов мобильны и часто легко регулируются как по длине опор станины (увеличивая площадь опоры), так и по вылету стрелы (захват грузов на большие расстояния).
Виды гидравлических кранов
Всего существует четыре вида гаражных кранов: складные, нескладные, подкатные и стационарные.
Стационарный гидравлический кран отличается от остальных тем, что крепится к полу гаража и имеет поворотную стрелу. Такой кран удобен при снятии крупных узлов автомобиля, например коробки передач, когда отсутствует большое свободное пространство для разворота подкатного крана: достаточно повернуть стрелу в сторону. Минус стационарного крана — необходимость сверления полов и запас по толщине бетона для его установки.
Три оставшихся вида кранов мобильны и зачастую могут легко регулироваться как по длине опор станины (увеличение площади опоры), так и по вылету стрелы (захват дальних грузов).
provincial-74 › Блог › Кран балка в гараже своими руками
Здравствуйте, ребята. Сегодня я поведаю свою историю о том, когда руки просят, а механизма нет.
В обычном гараже, с невысоким потолком, можно соорудить подъёмный кран и тягать им моторы, коробки передач, подвешивать различные части кузова машины и прочую утварь.
Как обычно, вопрос встаёт ребром: чем извлечь ДВС из авто наружу? Есть вариант применения подкатного крана (гуськового типа) с гидравлическим приводом. Вариант хороший, мобильный, кран складывается и перевозится. Попользовался сам — поделился с товарищем. Красота. Мне от него особо толку нет, поскольку нужны ещё руки для кантования этого всего дела. Плюс к тому: гараж стандартный 4х6, и, извлечённый агрегат, с таким краном вокруг разобранного авто не покатаешь. На улице теплело под конец весны, расцветали одуванчики, а у меня созрел план кран-балки и даже появился эскиз конструкции.
Первоначальный замысел был такой: смонтировать под потолком одну двутавровую балку поперёк проёму ворот над уровнем капота. Вся загвоздка в том, что такой конструкцией я не удовлетворю всех своих потребностей по перемещению груза в плане его транспорта в свободное место гаража. Локация погреба «заставляет» загонять машину чуть наискосок. Проблему не решить одной степенью свободы движения крановой каретки.
Усложнил проект до полноценной кран-балки с двумя степенями свободы перемещения. Затраты возросли более чем в 2 раза. Электрический тельфер ставить смысла нет (у меня не производственные мощности), поэтому привод заложен ручной. Конструкция крана следующая: две продольных и одна поперечная двутавровая балка. На продольных балках устанавливаются тележки и подвешивается третья — продольная балка. На продольной ещё одна тележка — для тали.
Теперь расчёты. Задаём максимальную массу груза, которую будем поднимать. А дальше выбираем тип и размер используемой балки Здесь. Следующим шагом считаем величину прогиба балки в этом калькуляторе. Если выбранная балка подходит по величине прогиба, её нужно пос
Как краны «Гусь» применяются в гаражах и автосервисах?
Краны в автосервисах используются преимущественно для демонтажа и перемещения по цеху двигателей, коробок передач и прочих тяжелых агрегатов. При монтаже мотор фиксируется стропами на крюке; после чего перемещается дальше до ремонтного участка СТО.

Складной и не складной кран — какой выбрать?
Складные вариации крана удобны для нерегулярного использования. У таких моделей можно сложить как стрелу, так и нижние аппарели. Сложил и откатил в угол цеха для хранения запасных частей, места они занимают не много.

У не складных моделей складывается только верхняя консоль. Но зато такие конструкции обладают наибольшей устойчивостью. К тому же, цена на такие стационарные модели всегда ниже их складных «братьев».
Классификация по грузоподъёмности кранов в гараж
- Грузоподъёмность до 1 тонны. Такие модели подойдут для обслуживания легковых автомобилей, квадроциклов и т. п. В зависимости от длины консоли, можно выбрать и нужную грузоподъёмность.
- До 2-х тонн — подойдут для оснащения небольших СТО, которые обслуживают как легковые автомобили, так и грузовые типа Газель.
- До 3-х тонн — для эксплуатации в мастерских и предприятиях по ремонту автобусов, грузового транспорта, различной сельскохозяйственной техники.
Особенности конструкции крана гаражного
Нужно отметить, что гаражный кран может иметь разный силовой привод: пневмогидравлический, механический и гидравлический. Два из первых встречаются иногда, а вот последний стал наиболее распространенным в автосервисах. Причиной к этому послужили следующие факторы: безопасность, надежность, эффективность и простота в управлении. Кран оборудованный следующими деталями:
- опорная рама или каркас;
- грузоподъемная стрела с допустимостью «вылета»;
- транспортировочные колеса;
- основной механизм гидравлического привода;
- грузовой крюк с цепью.
Нужно отметить, что вопреки своей простоте, конструкция данного оборудования рассчитана таким образом, чтобы максимально точно предоставить стабильность, а также гарантировать защиту от угловых нагрузок. Инструмент стойко фиксирует предмет в определенной позиции, а после гарантирует точное опускание.
Самодельный гаражный кран
Подъемник в гараже действительно нужен. Его очень удобно использовать, когда возникает необходимость тщательного технического осмотра, разборки двигателя. Безусловно, можно приобрести готовый кран для гаража. Производители в широком спектре представляют электромеханические, гидравлические подъемные механизмы.
Но опытные гаражники знают точно: самодельный гаражный кран будет ближе к сердцу. И есть реальная возможность изготовить подъемный механизм своими собственными руками, с минимальными затратами. Давайте рассмотрим на конкретном примере.
Здесь много полезной информации. И можно представить себе наглядно данное подъемное устройство.
Делаем гаражный кран
Гаражники рассказывают, что кран в гараж можно сделать своими руками. При этом устройство получается вполне надежным и безопасным, отличается долговечностью. Данный факт уже проверен на личном опыте автолюбителей. Узнаем, как сделать кран для гаража, который принято еще называть гусем
.
Вот каким опытом делится эксперт, успешно изготовивший подъемник.
В первую очередь автолюбитель отмечает, что именно разборный самодельный гаражный кран просто необходим, когда нужно сэкономить пространство. Конечно, это особенно актуально в небольших гаражных помещениях, а также там, где стоит несколько машин, мотоциклов. Тут без такого крана просто не обойтись.
Отлично, если удастся достать по демократичной цене металлический профиль. Тогда затраты на изготовление вообще будут минимальными. Вот какие материалы понадобятся.
- Металлический профиль с параметрами 80 на 80 мм, всего 7 метров. Толщина стенки составляла 3 мм.
- Две профилированные трубы.
- Домкрат на 5 тонн.
- 4 металлические пластины с толщиной 8 мм.
- Шпильки М 14, 100 мм.
- Крюк от буксировочной стропы.
- 6 колесиков: 2 поворотных с тормозами, 2 простых поворотных, 2 прямых.
Безусловно, очень важно точно убедиться в безопасности такого самодельного гаражного крана. Автолюбители отмечают, что они долго проверяли свои устройства, подвергали их сложным испытаниям. И становится очевидно, что подъемный механизм надежный
Например, гаражник подвесил на подъемник мопед и сел на него: в итоге получился общий вес примерно 250 кг. Выдерживать такие нагрузки вполне достаточно, чтобы потом использовать кран для разборки двигателя
И становится очевидно, что подъемный механизм надежный. Например, гаражник подвесил на подъемник мопед и сел на него: в итоге получился общий вес примерно 250 кг. Выдерживать такие нагрузки вполне достаточно, чтобы потом использовать кран для разборки двигателя.
Рассмотрим фото, которые сделаны при изготовлении крана для гаража.
Гидравлический домкрат
В основу гидравлических домкратов заложены свойства известной из курса физики гидравлической машины. Распространённые представители этого типа — бутылочные и подкатные домкраты.
Бутылочные домкраты состоят из корпуса, выдвижного поршня и рабочей жидкости (масла). В силу простоты конструкции это надёжные помощники, следует лишь время от времени их обслуживать. Бутылочные домкраты поднимают от одной до нескольких десятков тонн и могут применяться при ремонте как легковых, так и грузовых автомобилей. Минус бутылочных домкратов — высокий уровень начального подъёма, то есть автомобиль с небольшим дорожным просветом поднять будет сложно.
Подкатной домкрат — гаражное, а правильнее сказать, сервисное оборудование, никак не предназначенное для работы в поле. Этот домкрат оснащён колёсами и имеет низкий корпус, который легко разместить под автомобилем. Также следует отметить большую подъёмную площадку, не продавливающую дно автомобиля. Минусы такого домкрата плавно вытекают из плюсов: наличие колёс говорит о возможности использования домкрата исключительно на ровной поверхности. Однако для проведения ремонтных работ-лучший подкатнойвариант. пневмодомкрат.
Краны гидравлические – виды приводов

Гидравлика значительно облегчает работу с оборудованием и обеспечивает комфортное использование. В продаже есть два вида гидравлических кранов:
- полная гидравлика – все процессы подъема и спуска обеспечиваются гидравлическими цилиндрами;
- комбинированные модели – есть гидравлические цилиндры и ручные усиленные лебедки.
Слабое место гидравлики – масляные цилиндры. Которые приходится менять довольно часто. Поэтому если вам нужен кран ежедневно, лучше приобретайте комбинированную модель.
Средняя цена пневмогидравлического крана с высотой подъема 2.3 метра от пола – 10 000 руб. – 15 000 руб., более сложные модели с усиленной складной конструкцией обойдутся примерно 30 000 руб. – 40 000 руб.

При желании и наличии сварочного аппарата такой складной кран вполне можно сделать своими руками, обойдется самодельная конструкция примерно в 5 000 руб. Как сделать гаражный кран – расскажет видео сюжет.
Съемник Форсунок — Приспособление Для Снятия Своими Руками, Виды: Гидравлический, Универсальный, Инерционный и Самодельный, Инструкция по Демонтажу и Замене
В процессе эксплуатации автомобиля возникает необходимость снять форсунки для замены или диагностики. В этот момент автовладельца может поджидать неприятность в виде залипшей форсунки. Причинами этого могут быть как перегрев двигателя, так и просто окисление места контакта, вызванное воздействием агрессивной внешней среды. Приложение чрезмерного усилия вызывает повреждение форсунки. Очень часто она слегка сдвигается с места, а потом заклинивает, делая невозможным движение в любую из сторон. Для решения проблем на помощь приходит специальный съемник, предназначенный для демонтажа застрявших форсунок.
Комплектация фирменного вибрационного съемника форсунок
В комплект инерционного съемника, изготовленного на заводе, могут входить:
- блок экстрактора, выдерживающий работу при различных частотах и амплитудах;
- блокировочный шток вибрационного стержня, предназначенный для фиксации;
- ступенчатые упорные кольца, обычно одно либо два;
- подшипниковое кольцо, улучшающее скольжение и плавность вытаскивания форсунки;
- силовая гайка, изготовленная из высокопрочной стали, для предотвращения быстрого износа резьбы;
- пакет рессорных шайб, устраняющий жесткую фиксацию, способную вызвать повреждения головки и форсунок;
- защитное кольцо, повышающее безопасность работы со съемником.

В некоторых автомобилях, например, Mercedes Vito, Renault Master, Toyota Hiace использование инерционного съемника затруднительно. Связанно это с недостатком места для его размещения. На помощь в таком случае приходит гидравлический съемник форсунок, способный выполнить демонтаж в самых труднодоступных местах.


Самодельные способы демонтажа
Выполняя демонтаж своими руками, важно помнить о риске повреждения головки блока цилиндров. При прикладывании чрезмерного усилия вместе с форсункой может оторваться часть посадочного места
Без дорогостоящего ремонта после этого не обойтись, поэтому запрещено выдалбливать форсунку при помощи подручных средств, например, перфоратора или отбойного молотка.

Изготовленный самостоятельно съемник для форсунок позволяет вынуть форсунку без применения вибратора Vibropac. При этом шанс повредить ГБЦ и продолжительность извлечения увеличиваются. Срок службы самодельного девайса небольшой, поэтому сорванная резьба во время демонтажа не редкость.
Инструкция по снятию застрявших форсунок
Для демонтажа форсунок при помощи фирменного съёмника рекомендуется придерживаться следующей последовательности:
- Устранить все загрязнения при помощи продувки сжатым воздухом;
- В зазор между форсункой и посадочным местом залить проникающую смазку, например, WD-40;
- Установить инерционный съемник над застрявшей форсункой;
- Штуцер слива обратного топлива должен проходить через позиционирующую прорезь;
- Используя динамометрический ключ, навинтить шпиндель на резьбовую часть форсунки. Затягивать необходимо с номинальным моментом, указанным в техническом описании автомобиля. У большинства автомобилей усилие составляет 20 Ньютонов на метр;
- Надеть шайбу проточенной стороной вниз;
- Сверху расположить вторую шайбу. Сферическая ее сторона должна смотреть вниз. Для повышения плавности демонтажа и продления срока службы рекомендуется смазать приспособление маслом;
- Надеть пакет рессорных шайб. идущий в комплекте с фирменным съемником для форсунок;
- Закрутить гайку вручную. Когда усилия станет недостаточно, потребуется ключ на 36. Закручивать следует до появления небольшого усилия.
Дальнейшая работа связанна с применением вибратора Vibropac. При его отсутствии умельцы рекомендуют постукивание молотком. Данный способ сработает при несильном залипании форсунки. При этом риск повредить крышку ГБЦ крайне велик, поэтому данный способ применять не желательно. При наличии Vibropac дальнейшая инструкция действий приведена ниже:
- Снять насадку для демонтажа свечей зажигания;
- Максимально перекрыть подачу воздуха;
- Надеть на ударный штифр;
- Разметить ключ на гайке;
- Нажать на педаль Вибропака;
- В определенный момент под действием вибрации гайка начинает закручиваться. Это обозначает, что снятие форсунок идет успешно. На ключ при этом чрезмерное усилие прикладывать не стоит;
- Закручивать гайку необходимо комбинируя с действием вибрации;
- В определенный момент форсунка освободится. Необходимо снять ключ и вынуть ее вместе со съемником.

Использование съемника позволяет сэкономить время, так как нет необходимости демонтажа крышки ГБЦ. Аккуратность в работе позволит сохранить посадочное место целым. Достаточно почистить его, и можно устанавливать новую форсунку.
swapmotor.ru
На что обратить внимание при покупке крана в гараж?
В первую очередь смотрите на общий вес конструкции — чем он больше, тем сам кран более крепкий и надёжный.
Второй критерий — конечно цена. Имейте ввиду, что практически все гаражные краны, реализующиеся в России, произведены в Китае. Поэтому переплачивать за бренд смысла нет никакого.
Дополнительно стоит получить больше информации о поставщике. Если он замыкает на себе весь цикл от закупки оборудования до его поставки и реализации в собственных магазинах, то конечная розничная стоимость продукции будет ниже. Также узнайте, имеется ли у поставщика собственный сервис по обслуживанию продаваемого оборудования. Рекомендуем сайт одного из таких поставщиков: https://www.inolta.by/ — тут вы можете самостоятельно изучить ассортимент и задать интересующий вопрос.
Способы крепления верёвки к грузоподъёмному механизму
При создании комплексных полиспастов, нередко бывают ситуации, когда троса необходимой длины для крепления подвижного блока не оказывается под рукой.
Кран для газоблоков
Способы крепления троса с помощью такелажа общего назначения:
- С использованием репшнура. С помощью самозатягивающегося узла репшнур привязывается к основному тросу. По мере поднятия груза, схватывающийся узел передвигается по основной верёвке, позволяя тем самым увеличить высоту подъёма груза.
- С использованием зажимов. В случае использования стального троса – использовать репшнур не представляется возможным, поэтому необходимо использовать специальные зажимы.
Технология сборки крана своими руками
При наличии определенных навыков собрать механизм собственноручно не составит труда
Для этого важно составить предварительный чертеж конструкции, грамотно выбрать материалы и четко следовать инструкции сборки
Схемы и чертежи
Ниже представлены примерные чертежи гидравлического крана. Точные расчеты требуется производить самостоятельно, исходя из параметров конкретного гаража.
Выбор материала
Для самостоятельного построения гаражного подъемника рекомендуется сначала закупить весь требующийся материал:
- 3 стальных уголка с параметрами 7.5х7.5х0.8 сантиметров.
- «Червячный» редуктор, минимальная грузоподъемность которого начинается от 300 килограмм, а придаточный показатель – 60 килограмм.
- Крепкая стальная плита толщиной в один сантиметр. При наличии старого станка по металлу можно ее взять из него, посторонней помощи для этого не понадобится.
- Около 10 подходящих болтов.
- 2 плотных металлических цепи с диаметром от двух до трех сантиметров. Кран предназначается для работы с очень тяжелыми материалами – следует внимательно следить за качеством металла.
- Крюк.
- Стальной трос диаметром 5 миллиметров.
- 2 шпонки с разными параметрами в форме звездочки.
Пошаговая инструкция построения
Процесс сборки и установки самодельного гаражного крана не выглядит сложным:
- стальные уголки требуется установить на параллельных стенах;
- на них закрепить стальную плиту с помощью болтов «М8»;
- на плите зафиксировать «червячный» редуктор;
- установить шпонку большего размера на приводном вале;
- на заранее обозначенном месте просверлить дырку, провести в нее цепь и сомкнуть ее в кольцо;
- зафиксировать шпонку меньшего размера на выходном вале редуктора;
- просверлить в плите еще 2 отверстия;
- продеть через отверстия вторую цепь, где один конец окажется на маленькой шпонке, а на втором установлен крюк.
Самостоятельная установка крана имеет ряд важных преимуществ. Например, стоимость самодельного механизма почти в два раза ниже покупного.
Обзор на самодельный гидравлический подъемный кран!Снятие и установка двигателя в авто в две руки.
Гидравлические краны: особенности и преимущества
Важно отметить, что такие приспособления используются для выполнения различных работ, их принято использовать в гаражах, на стройке, поэтому сегодня они востребованы и популярны. Гаражный кран складной гидравлический
Гаражный кран складной гидравлический
- Они просты в эксплуатации, кроме того, не будут требовать особых знаний, именно такое приспособление сможет поднять тот или иной узел автомобиля без проблем, даже если речь идет о грузовом автомобиле.
- Есть несколько видов таких приспособлений, например: складные, стационарные устройства, причем каждый из этих вариантов сегодня популярен и востребован, и предназначен для выполнения различных видов работ.
- Если говорить о стационарном гидравлическом кране, то он имеет серьезное отличие, сравнивая со всеми остальными вариантами, его принято крепить к полу гаража, он также отличается и поворотной стрелой, которая имеется в наличии.
- Это кран действительно является удобным, особенно, когда необходимо снять крупный узел автомобиля, и т.д. Теперь вы должны понимать, чем необходимо воспользоваться, когда нужно снять, например, коробку передач.
Привод гидравлического крана
Хочется отметить, что такие приспособления бывают двух видов: это гидравлика, а также гидравлика, оснащенная специальным механическим приводом, если выбор пал на второй вариант, то нужно знать, что его принято считать более удобным. Говоря о конструкции гидравлического привода крана, знайте, что она является схожей с гидравлическим домкратом.
Если выбор пал на складной гидравлический кран, знайте, что он отличается удобством и доступностью, а значит, этот вариант является действительно одним из наилучших, он компактный, мобильный, а самое главное, грузоподъемный, что немаловажно
Как правильно выбрать домкрат
Итак:
Так что, если внимательно изучить все критерии выбора, то можно без проблем выбрать качественный, надежный и безопасный домкрат. Гаражные краны довольно разные и различна специфика их применения. Инструкция поможет вам сделать правильный выбор.
Механический домкрат
Самым распространённым в среде автомобилистов подъёмным оборудованием по праву считается механический домкрат — например, вертикально-винтовой. Такой домкрат представляет собой плечо подхвата, закреплённое на винте и имеющее специальный паз под выемки на днище автомобиля.
Вертикально-винтовые домкраты надёжны, но не всегда удобны в применении. Между тем достоинства такого домкрата — высокая прочность, низкая стоимость, малая масса и хорошая высота подъёма.
Его наследник — горизонтально-ромбовидный домкрат. Основанный на четырёх рычагах, соединённых между собой шарнирами в виде ромба, в верхней части домкрат имеет опорную площадку или паз. Подъём и опускание автомобиля с помощью такого домкрата осуществляется путём вращения винта, установленного параллельно основанию.
Ромбовидный домкрат с электроприводом — наиболее удачная конструкция для дорожного автомобильного набора. Конструкция ромбовидного домкрата отличается жёсткостью, небольшой массой и простотой эксплуатации. Также в продаже можно найти ромбовидный домкрат, работающий от бортовой сети автомобиля и управляемый с пульта.
Ещё один вид механических домкратов — рычажно-винтовой. Таким типом домкрата комплектуется большинство
европейских и отечественных автомобилей. Вместе с тем грузоподъёмность и поперечная жёсткость такого домкрата откровенно хромают, а отсутствие идеально ровной площадки под его опорной лапкой может привести к опрокидыванию автомобиля. Конечно, для замены колеса такого домкрата хватит, но только вдали от гаража.
Кроме винтовых существуют реечные домкраты, или ручные лебёдки. Покорители бездорожья именуют их хайджеками. Такой домкрат может использоваться для подъёма не только автомобиля, но и груза на стройке. Его основные плюсы — высота подъёма и простота конструкции. Минусы — небольшая площадь опоры, большие габариты и масса.
Гаражные гидравлические краны складного и нескладного типа
Мы новички в этом блоге и как-то рассказали о нашем гараже, которого нет.
В смысле местА для ремонта УАЗов есть, а гаража нет. Все делаем на улице или в этих местах. В том числе и с использованием гаражного крана Matrix. Он у нас двухтонный, подъем стрелы в самом крайнем положении (500 кг) — 240 см

Кран в работе.
И в нерабочем состоянии компактно складывается:

Кран сложен.
И тут один из наших соблогеров попросил сделать размеры крана. Хочет его сделать сам.
А что, на календаре выходные, на улице -20, самое время снимать размеры.
И мы этим занялись. А раз уж сделали, то почему бы и не для всех «гаражистов».
Немного предыстории.
Купили кран, чтобы вынимать и ставить обратно движок у Зёбрика — нашего боевого УАЗа.
Вот тут одна история про использование крана: Делать — так делать!
А тут кран уже отрабатывает себя: Как мы «отжали» ящик пива.
Здесь он вообще помогает в работе на участке: О неожиданной пользе гаражного крана.
И на нашем другом УАЗе — Патрике помог рессоры поменять: Ставим рессоры от Барса, внезапно, на Патрика.
В общем, как оказалось, полезная штука.
Дальше размеры и ключевые фото. Вдруг еще кому пригодится. Не зря же морозили части тела.
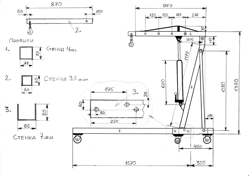
Вид сбоку (заранее просим прощения за качество чертежа):

Вид сбоку.
Вид сверху:

Вид сверху.
Станина:

Основа крана.
Нога крана:

Нога.
Втулки ноги:

Втулки
Ролики:

Ролики.
Верхний узел:

Верхний узел.
По опыту — кран удобный в эксплуатации, компактный и точно полезный.
Источник
Гаражный кран // Кран для снятия двигателя /// Кран гидравлический складной своими руками !!!




































