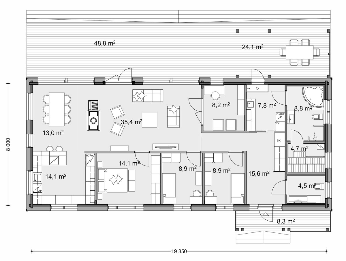
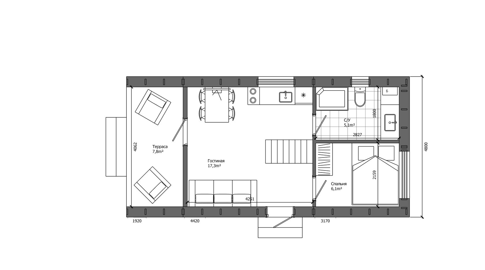
Одноэтажный дом 7 на 7
Небольшой одноэтажный домик подойдет для молодой семьи, пожилых людей или семьи из трех-четырех человек. Ограниченное пространство не позволяет разделить дом на большое количество функциональных помещений.

Однако для гостиной, спальни, кухни и санузла места вполне хватит. При планировании одноэтажного дома 49 квадратных метров приходится отказываться от некоторых помещений.
- Например, от столовой или отдельной гардеробной. Столовую можно организовать в гостиной, если кухня очень мала. Зонировать пространство можно при помощи подиума, арки или освещения.
- Составляя план дома, прежде всего, следует определиться с расположением и размером спальни. Можно разделить все пространство на три части: гостиная, совмещенная со спальней, кухня и санузел.
- В этом случае можно организовать полноценную обеденную зону в кухне. В гостиной можно поставить раскладной диван или просторную кровать на подиуме, отделив спальную зону занавеской или ширмой. Санузел можно сделать совмещенным.

Для экономии пространства поставить душевую кабину, тогда в ванной поместится стиральная машина.

Преимущества дома 7 на 7
- Современность. Сейчас минимализм в тренде. Маленькие дома зачастую оснащаются биотуалетами, компактной или многофункциональной мебелью.
- Универсальность проекта. Есть возможность адаптировать проект к любым условиям. Например, к особенностям рельефа.
- Строение можно возвести даже на малой площади. Достаточно несколько соток земли, чтобы построить дом с соблюдением всех необходимых нормативов.
- Простота в обустройстве. Есть возможность сэкономить на приобретении мебели и отделочных материалов. Особенно, если отдать предпочтение многофункциональным вариантам: шкафу-кровати, встроенной технике и полкам на кухне, вместо навесных шкафов.
- Экономия средств в процессе строительства. На возведение маленького дома потребуется меньше строительных материалов, чем на строительство большого здания.
- Экономия на коммунальных платежах. В небольшом доме расходы на электроэнергию и отопление меньше.
- Проще прокладывать коммуникации.









Дизайн интерьера дома 7 на 7
Чтобы проживание в доме было максимально комфортным, следует выбрать дизайнерский стиль, в котором будут оформлены все помещения в доме. Для маленького дома лучше всего подойдут следующие стили:
Интерьер дома в классическом стиле
Дом должен быть оснащен двускатной крышей, а также чердаком или мансардой. Обязательно наличие подвала и крыльца. Предметы мебели следует приобретать геометрически правильной формы, без вычурностей. Стиль характеризуется использованием оттенков бежевого, белого или коричневого цвета.

Интерьер дома в стиле Хай-Тек
Современный стиль, который характеризуется плоской крышей, обилием стеклянных элементов, необычными формами домов, точечной подсветкой по периметру участка.
- Дом должен быть оснащен современной техникой и мебелью с глянцевыми поверхностями.
- Цветовая гамма хай-тека: синий, серый, черный, белый.
- Допускается наличие ярких акцентов.

Интерьер дома в стиле Лофт
Кирпичные стены без штукатурки, бетонный пол и скудная цветовая гамма, которая ограничивается насыщенными темными оттенками: коричневым, терракотовым, черным, серым. Оживить интерьер комнат, можно при помощи добавления светлых тонов.

Интерьер дома в стиле Прованс
Компактный милый домик, утопающий в цветах. При строительстве и отделке должны использоваться только натуральные материалы. Тоже самое касается мебели, текстиля и элементов декора. Для этого стиля характерны природные пастельные тона: салатовый, розовый, небесно-голубой, желтый, сиреневый и другие.

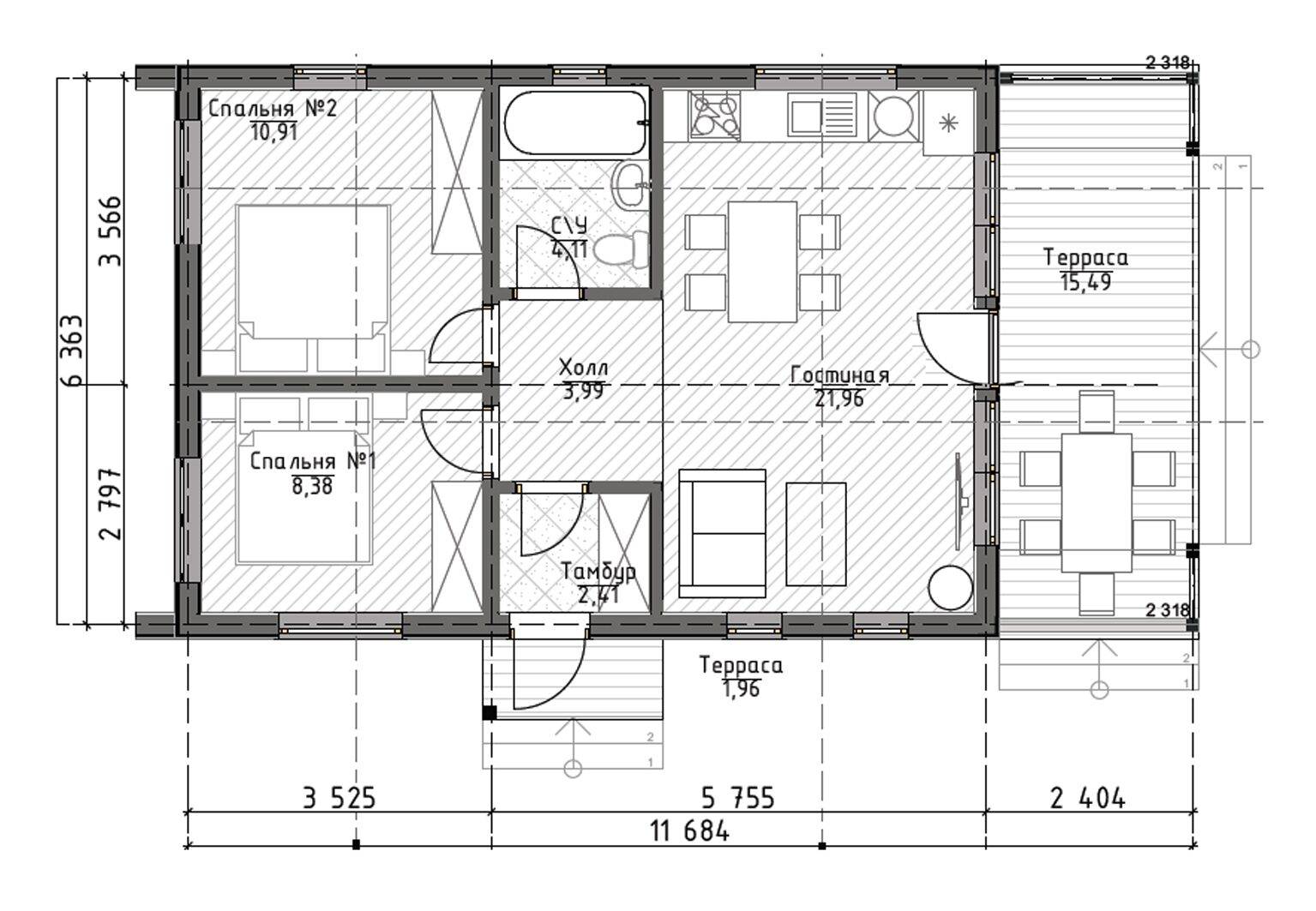
Проект дома в стиле барнхаус
Проекты жилых домов в стиле барнхаус не пользуются особой популярностью, но они имеют множество достоинств, на которые стоит обратить внимание

Отличительная черта такого стиля – это простота, но дом не выглядит скучным, а наоборот, броским. Значительные участки стены покрыты кирпичом, смотрится очень эффектно. Фронтоны подняты вверх, именно они придают дому престижный вид, как и в двух стенах огромные окна.
Планировка – это просторная гостиная, пространство которой продолжается на двух верандах. Здесь достаточно место для организации обеденной зоны или зоны отдыха. Также в этом доме нет границ между гостиной, кухней и столовой.

Для отдыха в доме предусмотрено две комнаты, они не большие, но компактные. А также ванная, топочная и кладовая. По желанию владельцев назначение любой из комнат можно изменить.
Достоинства и недостатки проекта
Дом и гараж под один или несколько автомобилей, построенные под одной крышей и на одном фундаменте – это самый практичный и экономичный вариант архитектурного решения проблемы. Вот преимущества проекта дома с гаражом под одной крышей:
- На небольшом земельном участке занимает мало места, что позволяет разместить на освобожденной территории другие постройки;
- Гараж может быть отапливаемым, причем без особых затрат: достаточно его систему радиаторов подключить к отопительной системе дома. Между домом и гаражом нет уличного пространства, поэтому коммуникации прокладываются без лишних затрат на утепление и заглубление в грунт. Потери тепла при этом буду незначительными;
- Также от дома можно протянуть водопроводные трубы и канализацию, что в гараже никогда не помешает: ремонт автомобиля – грязное дело;
- Экономия стройматериалов: фундамент, стены и кровля будут общими и у дома, и у гаража, поэтому цена строительства, расходы на стройматериалы и отделку у такого проекта жилого дома с пристроенным гаражом будут намного меньше, чем у проекта с раздельными строениями.
Визуализация проекта
Что еще можно добавить к преимуществам, которые имеют проекты домов 8 х 10 м с гаражом в виде пристройки:
- Как видно из первого рисунка, план объединенных строений обеспечивает свободное попадание из жилой зоны в гараж, не выходя на улицу, и зимой это огромное преимущество;
- Единая система пожаробезопасности и охраны существенно упрощается, также простое визуальное и слуховое наблюдение за гаражом и его содержимым происходит естественно;
- Что касается одноэтажного дома, то его преимущества очевидны: для детей и стариков передвижение по дому без лестниц гораздо удобнее и безопаснее;
- Если гараж сделать просторнее, то в нем можно дополнительно оборудовать сауну, биллиардную или спортзал, что также освобождает площадь в доме или на участке;
- Так как деревья на участке редко превышают высоту двухэтажного дома, проект одноэтажного строения прекрасно впишется в ландшафт, не нарушая, а дополняя его.
Проект дома с гаражом на один автомобиль
- Дом с гаражом одноэтажный больше подойдет для маленьких участков без уклона и оврагов. При сложном рельефе необходимо разравнивать грунт, а это – дополнительные затраты на строительство. Если участок большой, то этот недостаток превращается в преимущество, так как широкий дом с гаражом позволяет создавать интересные композиции;
- Одноэтажный дом – это маленькая площадь, максимум 10 х 10 метров, и на небольшом участке расширить дом не получится без урезания площади двора. Поэтому для расширения полезной площади дома предпочтительнее строить мансарду, а не веранду или террасу. Также можно обустроить жилой цоколь или подземный гараж, что тоже не сделает проект дешевле.
Основные недостатки

Встроенный гараж может стать фитнес залом для всей семьи, а если на территории будет ещё и бассейн — получится полноценный спорт клуб.
Несмотря на ряд положительных характеристик, у них есть свои минусы. В частности, это:
- сложные и дорогостоящие в постройке на участках с неровным ландшафтом. В этом случае на таком плане хозяева не сэкономят, а наоборот, тратят много средств на выравнивание почвы, на его подгон под условия, строительные материалы и консультации с дизайнерами;
- часто такие расчёты имеют небольшую площадь, поэтому подойдут для маленькой семьи. В то же время можно рассмотреть варианты, где есть жилая мансарда или цокольный этаж.
Дом с балконом
Балкон — это не мансарда, а выступающая часть здания, которая может быть открытого или закрытого типа. Балкон можно использовать в качестве дополнительной полезной площади.


Застекленный балкон можно использовать в качестве спальни, столовой или рабочего кабинета. Балкон может иметь любую форму:
- Квадрата или прямоугольника;
- Полукруга или трапеции.

Балконом можно оснастить как двухэтажный дом, так и одноэтажное строение. Оригинально смотрится угловой вариант. На такой балкон можно сделать выход из разных комнат. Удобно, если на таком балконе оборудована столовая.

Полукруглый балкон можно оснастить полукруглым диваном и столом. Можно поставить диван круглой формы, организовав просторную зону отдыха или полноценную спальню. Вариантов обустройства балкона множество.

Выбираем проект дома с гаражом: рекомендации редакции
Выбирая подходящий вариант, следует сначала определиться с типом дома. Если речь идёт о дачном строении, к его характеристикам будут предъявляться одни требования. Строение же, предназначенное для постоянного проживания, должно иметь более высокие эксплуатационные характеристики. Также следует определиться с желаемой площадью.
При выборе характеристик следует определиться с:
- количеством машин, которые будут в нём находиться;
- расположением въезда. Данный фактор зависит от особенностей ландшафта на конкретном участке;
- назначением помещения. Возможно, строение будет использоваться не только для хранения авто, но и для его ремонта. В последнем случае потребуется размещение специального оборудования.
Как создать свой проект Барн хауса?
Если вы решили построить Барн хаус, то первым шагом будет создание проекта. Вот несколько советов, которые помогут вам разработать уникальный проект Барн хауса:
- Определите свои потребности и предпочтения. Решите, сколько комнат вам нужно, какие функциональные зоны должны быть внутри дома и какие особенности дизайна вы бы хотели включить.
- Изучите различные стили Барн хауса и выберите тот, который больше всего соответствует вашим вкусам.
- Сотрудничайте с архитектором или дизайнером, чтобы создать детальный чертеж вашего проекта Барн хауса. Они помогут вам воплотить ваши идеи в реальность и учтут все технические и строительные аспекты.
- Не забудьте учесть бюджет на строительство и возможные затраты на материалы и отделку.
83
84
85
86
87
88
89
90
91
92
93
94
95
96
97
98
99
100
101
102
103
104
105
106
107
108
109
110
Узаконить будущий гараж
Конечно, тут есть свои проблемы. Никто не позволит вам что-то построить только на том основании, что, увидев в Интернете фото дома с гаражом, вам захотелось иметь такой же. Ловкачей, которым это всё же удавалось, периодически вынуждают сносить свои незаконные строения. Для того чтобы не попасть под каток правосудия, нужно, прежде всего, узаконить строительство.

Узаконить такое строительство – значит получить на него разрешение в органах местной власти. Оно может быть выдано только собственнику земельного участка, на котором он (собственник) собирается построить дом с мансардой и гаражом.

Причём в полученных вами документах должно быть недвусмысленно сказано, что кроме дома с мансардой вы собираетесь строить ещё и гараж. Все эти нюансы лучше оговорить заранее, чтобы не возвращаться к ним всякий раз, когда вы захотите возвести рядом с домом какую-нибудь пристройку.
Плюсы и минусы домов с баней и гаражом
Способов совмещения под одной крышей названных помещений два:
- Помещения в одной коробке. Кровля общая или разделена на уровни. Такой способ потребует меньших трат, однако у него много недостатков.
Гараж выглядит как пристройка к двухэтажному строению
- Отдельные помещения, соединённые проходами. Составляют растянутый на местности комплекс. Конструирование сооружений будет дорогим, так как общее строение займет много места. Нужно сделать широкую и крепкую кровлю, тогда как в первом варианте всё можно уместить в маленькую коробку и надстроить сверху комнаты.
Планировка участка с домом, баней и гаражом
Преимущества у проектов общие:
- объединение всех инженерных систем дома. Не нужна прокладка десятков метров трасс в грунте и по воздуху;
- быстрый переход между помещениями без выхода на улицу;
- возможность обустройства в гараже небольшого склада для хранения твёрдого топлива;
- экономия пространства.
Недостатки у обоих вариантов тоже одинаковые. Понадобится звукоизоляция, так как заведённые автомобили создают шум.
Обилие водяного пара, образующегося во время топки в бане очень большое.
Ни одна ванная комната не создаст его в таком количестве (варианты планировки ванной в частном доме представлены в статье). Нужна надёжная изоляция, иначе начнут страдать несущие конструкции дома.
Планировка дома с гаражом и баней
Преимущества дома с гаражом
Все никак не можете решить, подойдет ли конкретно в вашем случае вариант совмещенного дома и гаража? Возможно, преимущества такого объединения ускорят ваши раздумья:
- Уменьшение затрат на строительство – вы будете возводить не два отдельно стоящих объекта, а одно комплексное сооружение, что даст возможность сэкономить на материалах.
- Удобство эксплуатации – ежедневно пользоваться гаражом под общей крышей с домом намного комфортнее, нежели отдельной постройкой, так как благодаря объединению исчезает необходимость регулярно выходить на улицу, чтобы попасть к машине. Особенно актуально это преимущество в холодное время года.

Дом с гаражом очень удобен для небольших участков
- Экономия площади – строительство совмещенного комплекса позволяет рационально использовать площадь участка.
- Увеличение функциональности гаража – в процессе проектирования можно так продумать планировку, чтобы гаражное помещение не только выполняло свою прямую функцию, но и служило хозпомещением.
Если все вышеперечисленные плюсы убедили вас в необходимости строительства дома с гаражом, приступим к изучению особенностей проектов. Начнем с вариантов расположения технического помещения.
Особенности
При планировании строительства такого типа необходимо учитывать много деталей:
- особенности планировки (количество комнат, их расположение, площадь);
- основный стиль и дизайн (выбрать материал для строительства и облицовки, стиль — классику, минимализм, стиль рустик или кантри и т. д.);
- учитывать конструктивные особенности конкретного замысла (образ жизни семьи, наличие детей и людей пожилого возраста, марка машины, интересы и т. д.).

Особенности хорошего замысла — это учитывание всех деталей
Самый эффективный и одновременно затратный способ — это обращение в архитектурную или строительную компанию. Специалисты помогут разработать грамотный, продуманный до мелочей, индивидуальный план.
В таком случае клиент получает на руки:
- хорошие строительные чертежи с подробными описаниями (особенности фундамента, крыши и перекрытия, коммуникации и т. д.);
- характеристику объекта — параметры жилой и общей площади;
- подробный план постройки с указанием помещений.
Он может быть готовым, адаптированным под семью либо индивидуальным. Второй вариант более дорогой, но имеет большую практичную и архитектурную ценность.
Если использовать готовый вариант — выйдет дешевле. Некоторые строительные компании на своих сайтах выкладывают бесплатные планы и чертежи, которыми может воспользоваться любой. И если в наличии ровный участок, а чертёж подходит под индивидуальный запрос — зачем платить больше?
Где можно взять бесплатные проекты одноэтажных домов
Самый доступный и простой способ найти бесплатный типовой план в интернете и скачать его – тематические блоги, форумы, в которых люди, построившие собственный жилье, выкладывают в свободный доступ проектную документацию. Делают это люди далекие от архитектуры для того, чтобы профессионалы помогли выявить и устранить возможные ошибки, найти моменты, переделка которых позволит сэкономить, либо просто поделиться своим опытом с другими.
Огромное преимущество подобных проектов – можно увидеть реальный дом, возведенное по этим чертежам, задать вопросы хозяину, чтобы уточнить все важные моменты.
Бесплатную проектную документацию можно найти и скачать на следующих ресурсах:
- Портал «Чертежи». Содержит библиотеки учебных и рабочих планов. Здесь можно найти проекты одноэтажных домов бесплатно с чертежами, но и схемы всех инженерных коммуникаций.
- Строительный форум «Форум Хаус». Представлено много планов.
- Типовые проекты можно найти на сайтах строительных компаний, которые заинтересованы в привлечении клиентов. Это позволяет значительно сократить время на первоначальном этапе работы с клиентом.
- Библиотеки готовых чертежей содержат много проектов, которые можно скачать. Однако неточности в описаниях, отсутствие наглядной информации, необходимость использовать сторонние программы для открытия файлов, значительно усложняет изучение документации.
- Крупные производители строительных материалов заинтересованы в привлечении клиентов, поэтому на официальных сайтах компании бесплатно размещают типовые проекты одноэтажных домов с фото.
На аналогичных ресурсах представлены разные проекты, которые можно использовать для строительства дома. Перед использованием того или иного плана, скачанного из интернета, лучше проконсультироваться со специалистом, который сможет выявить ошибки и недоработки. Строительство – затратное мероприятие, поэтому лучше устранить все недочеты на этапе проектирования.
Принципы создания
При создании, необходимо учитывать принципы строительства:
практичное использование места для машины, не только для хранения машины (например, как спортзал, сауну, мастерскую и т
д.); грамотное и практичное расположение коммуникаций, особенно следует уделить внимание вентиляции, которая предотвратит попадания выхлопных газов в жилое помещение; практичная планировка, избегание “глухих” углов и максимальная рационализация пространства; разделение жилой и хозяйственной части, гигиенические основы хранения и эксплуатации хозяйственного оборудования; организация удобного подъезда автомобиля.. Только при соблюдении этих правил, есть шанс, что будущий очаг действительно будет комфортным и порадует своих жильцов. Только при соблюдении этих правил, есть шанс, что будущий очаг действительно будет комфортным и порадует своих жильцов
Только при соблюдении этих правил, есть шанс, что будущий очаг действительно будет комфортным и порадует своих жильцов.

У одноэтажек есть ещё и другое преимущество — необходимый ремонт выполнять гораздо проще, а отапливать экономичнее.
Что такое Барн хаус?
Барн хаус – это переосмысление классического американского амбара. Он отличается своими простыми и геометрическими формами, использованием натуральных материалов и большими открытыми пространствами. Внутри такого дома обычно есть высокие потолки, большие окна и открытая планировка, которая создает ощущение простора и свободы.
Проект Барн хауса может быть адаптирован под ваши потребности и предпочтения. Вы можете выбрать размеры дома, количество комнат, а также дополнительные элементы дизайна, такие как печь с открытым огнем или большие террасы.
28
29
30
31
32
33
34
35
36
37
38
39
40
41
42
43
44
45
46
47
48
49
50
51
52
53
54
55
Достоинства и недостатки планировки дома с гаражом
По сравнению с раздельно стоящими гаражом и домом подобные строения обладают неоспоримыми преимуществами:
- занимают меньше места на участке. В результате удаётся более рационально распорядиться имеющейся площадью;
- позволяют сэкономить на количестве используемого материала, тем самым удешевляя строительство;
- имеют единые с жилым строением коммуникации, в том числе отопительную систему;
- могут использоваться для хранения не только автотранспорта, но и хозяйственных вещей;
- предоставляют возможность комфортного использования. Из жилой зоны внутрь пристройки можно попасть, не выходя на улицу. Это значительно облегчает процесс загрузки и разгрузки авто;
- обеспечивают более надёжную защиту от противоправных действий других лиц. Возможна установка единой охранной системы;
- гараж может использоваться в качестве спортзала или мастерской.
Для размещения строения требуется меньше места, чем для двух отдельно стоящих зданий
Чтобы подойти к машине, не надо выходить на улицу
Из недостатков стоит отметить повышенные требования к выполнению тепло— и звукоизоляции, чтобы не допустить проникновения шума и холода из пристройки внутрь жилой зоны. Также такое строение сложно возвести на участке со сложным ландшафтом. Значительные перепады по высоте потребуют значительных финансовых вложений.
Уровень теплоизоляции пристройки должен быть достаточным
Особенности проектирования
Существует всего два пути составить проект дома с гаражом, чертежи которого вам понравятся: сделать все самостоятельно или обратиться в соответствующую строительную организацию за разработкой индивидуального проекта. Во втором случае вы получите:
- Полное техническое описание объекта;
- Полные чертежи с описаниями;
- План строения со всеми подробностями.
Эти же пункты включает в себя и типовые проекты домов одноэтажных с гаражом.
Типовой проект дома с гаражом
Если вы выберете типовой проект, то это может быть как простой проект 6 х 10 м, так и очень сложный и красивый проект, но нужно помнить, что типовые разработки не всегда подойдут именно для вашего участка и ваших финансовых возможностей. Готовые решения лучше использовать на участках с ровным рельефом и без особенностей ландшафта и грунта. Иначе проект придется корректировать.
При самостоятельной разработке проекта, если вы не архитектор, проще всего воспользоваться компьютерной программой, например, ArchiCAD. Такой смелый подход позволит вам претворить в жизнь все ваши фантазии, вплоть до мельчайших деталей, а проект получится оригинальным и уникальным.
Разработка проекта в программе ArchiCAD
Главные правила при создании проекта одноэтажного дома с гаражом:
- Правильная планировка инженерных коммуникаций;
- Максимальная функциональность гаражного помещения;
- Рационализированное общее свободное пространство;
- Правильная планировка, предусматривающая разделение и максимальное удаление жилой и хозяйственной части;
- Разбивка и благоустройство приусадебного участка и автомобильного подъезда.
Проект дома и гаража на разных уровнях
Даже множество архитектурных и дизайнерских вариантов проектов можно условно поделить на два класса:
- Гараж-пристройка к жилью;
- Подземный гараж.
При строительстве подземного гаража значительно возрастают затраты на землеройные работы плюс вывоз грунта, углубление, усиление и гидроизоляция фундамента. Также понадобится правильно оборудовать въезд в гараж с углом наклона 12°. Именно отдельный въезд намного уменьшит площадь вашего участка и потребует дополнительной защиты от снега, дождя, наледи, и т.д.
Архитектурные решения
Простейший проект имеет прямоугольную форму с примыкающим гаражом к боковой стене жилого строения (см. рисунок ниже). Преимущества такого варианта – максимальное использование пространства.
Прямоугольный проект
План и место дома на участке
- Такие проекты предполагают размещение здания на возвышенности участка, если она существует, для максимального и более продолжительного естественного освещения. Если ваш участок расположен в низине или имеет ровную поверхность, то дом строится на северо-востоке, чтобы дом освещался солнцем максимально долго;
- Фасад дома должен выходить на юг, при этом проект дома с гаражом можно дополнить террасой;
- Чем ближе въезд в гараж к воротам, тем лучше;
- Перед въездом необходимо оборудовать парковку для кратковременной стоянки или для других автомобилей.
Расположение дома с гаражом на участке
Внутренняя планировка дома и гаража:
- Гараж с подсобными помещениями должен находиться со стороны севера;
- Гостиная в доме должна располагаться с южной стороны;
- Восток идеально подойдет для спален, детских и гостевых комнат.
- На западе – столовая, общая или игровая комната.
Следите за правильным расчетом площади гаража, чтобы открывающиеся двери автомобиля не задевали стены и позволяли свободно выйти из машины.
Для максимально комфортного проживания в таком доме и для оптимально удобной эксплуатации гаража рекомендуется обустроить небольшой тамбур между пристройкой и жилыми помещениями. Тамбурная пристройка сократит потери тепла в неотапливаемом гараже, и станет препятствием для проникновения посторонних шумов в дом из гаража. Также гараж – очень удобное место для расположения котла и другого отопительного оборудования, подальше от перехода между помещениями.
Еще один проект
Стиль дизайна дома в один этаж с пристройкой-гаражом можно выбирать любого направления – это зависит только от хозяина. При этом нужно учитывать архитектуру дома, форму кровли, экстерьер приусадебного участка. Если у вас большой участок, то дизайн рекомендуется в классическом или старинном стиле, на маленьком участке лучше будет выглядеть дом в минималистическом стиле или хай-тек.
Неважно, типовой проект одноэтажного дома с гаражом вы выдерете, или закажете индивидуальный вариант со своими решениями. Если вы будете придерживаться наших рекомендаций, то в результате получите комфортный и функциональный загородный дом с удобным гаражом
На что обратить внимание
При обсуждении проектов одноэтажных коттеджей с гаражом следует обратить внимание на четыре важных момента:
Помещение для гаража должно гармонично вписываться в облик дома.
Гараж должен иметь высокий потолок. Высота помещения не должна ущемлять домочадцев при выполнении различных манипуляций с машиной.
Высокий потолок дает дополнительные возможности для владельца, например, он может стать «полкой» для велосипедов
Объект должен иметь жилую и хозяйственную части. Они должны быть удалены друг от друга.
Строение должно иметь хорошо продуманную вентиляцию. При плохой системе вентилирования угарный газ может попасть в жилые помещения. В идеале, если гараж будет располагаться в так называемой технической части коттеджа. Такое размещение позволить избежать проникновения угарных газов в комнаты.
Площадь гаражного помещения должна быть рассчитана с максимальной точностью. Двери машины должны свободно открываться, не задевая стен. При этом должно быть достаточно места, чтобы водители и пассажиры могли нормально выйти из машины.
Если коттедж не имеет гаража, то его можно пристроить. При этом не следует выполнять работы самостоятельно. Это только на первый взгляд кажется, что пристройки легко делать. На самом деле, создание пристроенных конструкций представляет собой реализацию сложного проекта. При несоблюдении технологий можно допустить целый ряд ошибок. Проект предполагает расчет несущих конструкций, сооружение фундамента, стен и крыши, прокладку коммуникаций и пр.































