Основные правила проектирования дома с мансардой
Кажется, что красивые дома с мансардой просты как в проектировании, так и в строительстве, но это мнение ошибочно. При монтаже строения такого типа требуется соблюдать определенные правила и технологии. В противном случае мансарда будет холодной, шумной, влажной и не таких размеров, как это представлялось
Чтобы избежать такого результата, при проектировании и строительстве нужно знать и принимать во внимание особенности мансардного дома
Несмотря на то, что мансарда это размещение второго этажа непосредственно под крышей, нужно соблюдать предписания, которые говорят, что высота от пола до потолка должна составлять не менее 2,5 м. Это надо учитывать при проектировании формы крыши, которая делается ломаной – когда одна часть располагается под углом не более 30 градусов, а вторая – не менее 70. Такой прием в некоторых случаях увеличивает полезный объем на 90%.
Важно правильно продумать систему коммуникаций. Если на мансарде планируется водяное отопление, размещение ванной комнаты, нужно рассчитать необходимое давление воды и установить соответствующий полученным параметрам насос

При водяном отоплении мансарды для самотека воды придется поднимать котел, или установить в систему насосИсточник kd3.ru
Для размещения электропроводов предусматриваются специальные пожаробезопасные каналы в стенах или на их поверхности.
При проектировании учитывается вес всех перегородок и окон. Их по возможности делают из облегчённых материалов, чтобы уменьшить нагрузку на стены и фундамент.
Одним из преимуществ мансарды является то, что ее можно спроектировать и установить вместо крыши уже готового одноэтажного дома. Некоторые пытаются использовать эту возможность и самостоятельного модернизируют дом, но забывают при этом, что фундамент, перекрытия и стены были рассчитаны на одни нагрузки, а установка мансарды ощутимо их увеличивает. В итоге, появляются трещины, а дом понемногу разрушается. По этой причине, при необходимости провести подобные работы, надо обращаться в специализированные строительные компании, сотрудники которых обладают достаточным опытом, чтобы правильно укрепить стены и фундамент и обустроить дом мансардного типа по всем правилам.
Проекты
Для того, чтобы построенный дом был надежным и удобным, необходимо на этапе проектировки учитывать все особенности здания:
- Если мансарда достраивается к уже существующему дому, то прежде всего необходимо укрепить стены – это позволит предотвратить разрушение основания.
- Высота мансарды от пола до потолка должна составлять не менее 2,5 м.
- Количество освобождаемого места зависит от типа крыши. «Ломаная» крыша добавит пространства примерно на 90%, двухскатная крыша – на 67%. Чтобы добиться 100% увеличения площади, крышу стоит поднять минимум на 1,5 м.
- Необходимо продумать расположение окон, мебели, лестниц, перегородок.
- Не стоит забывать и об особенностях климата и грунта.
Большую популярность имеют проекты дома, соединенного с гаражом. Преимущество данного варианта в том, что в таком случае при отсутствии отопления в гараже в нем все равно значительно теплее, чем если бы он располагался отдельно. Кроме того. попасть в гараж можно прямо из дома.
Если площадь дома позволяет, можно построить террасу с выходом из мансардного этажа. С нее будет открываться великолепный вид, в теплую погоду терраса будет служить местом для отдыха.
В настоящее время все чаще для постройки мансард используют пенобетон. Он легче и дешевле, при этом не уступает по характеристикам таким классическим материалам, как кирпич. Пенобетон имеет определенные преимущества:
- огнеупорность;
- прочность;
- устойчивость к неблагоприятным погодным условиям;
- высокая степень теплоизоляции;
- сокращение времени и сил при строительстве за счет блоков больших размеров и их легкости.
Из недостатков стоит выделить:
- необходимость в хорошей гидроизоляции;
- кладка осуществляется по специальной технологии;
- необходимость прочного фундамента;
- необходимость в дополнительной теплоизоляции.
Популярны уже готовые типовые проекты. Для такого здания характерны обычно такие габариты:
- 6х6 м;
- 9×9 м;
- 10х10 м;
- 8х10 м.
Для таких небольших площадей, как 4х8 или 2х6 м, лучше заказывать проект, чтобы специалисты правильно распорядились свободным местом, которого и так мало. На такой территории получится сделать не более 2х спален.
Планировка дома 9х9 в кругах специалистов считается классической. С такой планировкой можно оптимально использовать свободное пространство. В основном на первом этаже располагаются кухня, гостиная, ванная комната и спальня, а на втором этаже или две спальни, или спальня, ванная комната и рабочий кабинет.
При покупке проекта очень важно обратить внимание на наличие разводки коммуникаций, которая должна включать в себя:
- электропитание – все розетки и провода должны быть распределены по своим местам;
- система отопления – какие батареи будут использоваться и где находиться, чем будет отапливаться дом;
- система водоснабжения;
- система отвода канализации.
Помимо этого, проект должен включать в себя и сведения о кровле, ее форме, уклонах
Это очень важно, так как у мансарды кровля возводится иначе, чем у обычного дома. Большую роль играет теплоизоляция, необходимо правильно подобрать материал и толщину утеплителя
Проекты домов с мансардой и гаражом: отличительные черты коттеджей
Дом с мансардой – фото наглядно отображают различные варианты – является наиболее рациональным решением для небольшого участка, позволяющим увеличить жилую площадь без сокращения земельных угодий. Наличие личного транспорта становится причиной еще одного популярного приема – строительства дома с гаражом.

Проект дома с мансардой и гаражом для одного автомобиля
Проекты коттеджей с гаражом и мансардой обладают рядом преимуществ:
- благодаря совмещению двух функциональных зон удается снизить затраты, связанные с разработкой проекта и выполнением строительных работ;
- смежное расположение жилой зоны и гаража создает комфортную обстановку в последнем, что приводит к снижению затрат, связанных с отоплением гаража;
- создание внутреннего прохода позволяет беспрепятственно перемещаться из комнаты в гараж, не выходя на улицу, что особенно удобно в период ненастья;
- создание мансардного помещения обеспечивает увеличение жилой площади, что особенно актуально для одноэтажных построек;
- компактное многофункциональное сооружение позволяет существенно сэкономить свободную площадь земельного участка;
- строительство мансарды обойдется значительно дешевле, чем возведение второго этажа;
- мансардный этаж позволяет дополнительно утеплить жилое помещение, избавив его от сквозняков;
- пристроенный гараж будет стоить намного меньше, чем отдельно стоящий элемент;
- строения имеют стильный и презентабельный внешний вид, заметно выделяющий их на фоне других построек.
Материалы для строительства зданий с гаражом: фото домов и особенности проектов
Для строительства одноэтажного здания с гаражом могут использоваться различные материалы. Выбор зависит от бюджетных возможностей владельца, архитектурных особенностей здания, от самого проекта, а также свойств грунта, на котором будет стоять дом.

Для строительства домов используют кирпич, древесину и бетонные блоки
Для строительства загородного жилья обычно применяются такие материалы:
- кирпич;
- древесина;
- ячеистый бетон (газо- и пеноблоки).
Из каких блоков лучше строить гараж: проекты на основе газобетона и пеноблоков
Газо- и пенобетон представляют собой разновидности одного и того же материала – ячеистого бетона. Различие между ними заключается лишь в технологии изготовления, что в результате сказывается на технических и эксплуатационных параметрах этих блоков.

Проект одноэтажного блочного дома с гаражом для автомобиля
Материалы для строительства газобетонных зданий имеют стандартную толщину:
- 200 мм;
- 375 мм;
- 400 мм;
- 500 мм.
При разработке проекта одноэтажного дома с гаражом из пеноблоков или газоблоков обязательно нужно учитывать климатические особенности региона. Дело в том, что бетон обладает гигроскопичными свойствами, поэтому стены здания нужно защитить от воздействия неблагоприятных факторов окружающей среды. Для этого используются такие отделочные материалы, как:
- сайдинг;
- искусственный камень;
- облицовочный кирпич;
- декоративная штукатурка и т. д.

Газо- и пеноблоки идеально подходят для строительства одноэтажных зданий
Минимальная плотность материала – 300 кг/м². Этот показатель подбирается с учетом тех задач, для решения которых будут использоваться блоки. Например, для строительства несущих стен потребуются изделия, плотность которых составляет не меньше 400 кг/м². Перегородки внутри дома, не выполняющие несущих функций, можно соорудить из менее плотного материала, покупка которого обойдется дешевле.
Как реализовать проект одноэтажного дома с гаражом из кирпича
В проектную документацию таких зданий в основном закладывается силикатный или керамический кирпич. Выбор материал зависит от климатических особенностей региона, где будет располагаться дом. С учетом этого критерия толщина кладки на несущих стенах может варьироваться в пределах 250-640 мм.

Проект одноэтажного дома из кирпича с гаражом на два авто
Применение инновационных технологий, направленных на энергосбережение, позволяет снизить массу кирпича в стенах готового дома. Если проектом одноэтажного кирпичного дома с гаражом предусмотрена сплошная кладка внешних стен толщиной 640 мм, характеристики здания можно улучшить, изменив подход к его строительству. Для этого толщина кладки уменьшается до 250 мм, а в качестве утеплителя добавляется экструдированный пенополистирол (150 мм). Для отделки стен можно использовать облицовочный кирпич (120 мм).
Чаще всего для строительства загородных коттеджей применяется пустотелый керамический кирпич. Пустоты в изделиях, наполненные воздухом, усиливают теплосберегающие свойства кладки. Полнотелый кирпич в большей степени подходит для обустройства вентиляционных стояков. Этот вариант материала более эффективен, чем керамзитобетонные модули. Полнотелый кирпич также подойдет, если проектом предусмотрено наличие камина в доме.
Особенности проектов одноэтажных каркасных домов с гаражом
Дома, построенные по каркасной технологии, менее надежны и долговечны, чем кирпичные или газобетонные сооружения. Однако стоимость реализации подобных проектов гораздо ниже, а сроки ‒ значительно короче. Кроме этого, каркасные здания имеют относительно легкую конструкцию, поэтому их можно устанавливать на фундаменты столбчатого или свайного типа. Такие основания не требуют высоких затрат и возводятся очень быстро.

Строительство каркасного дома выйдет дешевле и быстрее, чем кирпичного или блочного
Проектная документация каркасных зданий обычно включает чертежи внешних и внутренних стен. Подробная информация обо всех нюансах конструкции просто необходима, поскольку она используется непосредственно в процессе строительства. Поэтому стоимость самих проектов может быть выше, чем в случае строительства кирпичных или газобетонных зданий.
Каркасные дома преимущественно имеют деревянную конструкцию. В качестве несущих стоек используется брус, который обшивается досками сечением 40х150 или 50х200 мм. На западе каркасные постройки очень популярны, однако у нас такие здания эксплуатируются лишь сезонно.
Выбору готового проекта или разработке нового нужно уделить немало времени. Чем тщательнее будет продумана планировка и учтены все нюансы, тем более удобным и комфортным получится дом в итоге.
Мансарда и её особенности
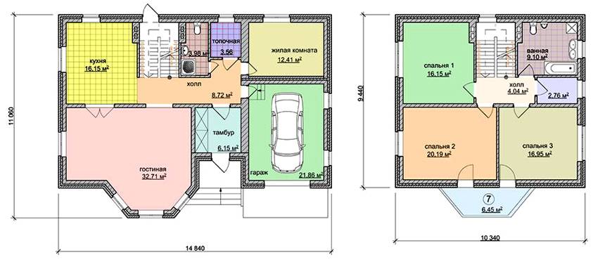
Планировка мансардной части включает в себя три спальные комнаты, холл и ванную общего пользования. Все комнаты просторные, освещение в них будет вертикальное, то есть используют окна практически во всю длину стены. В каждом помещении (кроме ванной) предусматривается по два оконных проема. Из самой большой спальни, площадь которой составляет 22.1 кв. м. можно попасть на лоджию, площадью в 2.6 кв. м. Холл тоже просторный, поэтому в нем можно установить небольшой диванчик. Освещение в коридоре будет искусственным, а в дневное время свет будет попадать через окно на лестничном проеме.

план 2 мансардного этажа в доме
Варианты внутренней планировки дома с мансардой
Внутреннее расположение помещений выполняется с учетом требований заказчика на стадии разработки проекта гаража с мансардой – фото планировки наглядно демонстрируют различные варианты. Здесь все зависит от желаемого количества комнат, их предназначения, что определяется составом семьи и требованиями владельцев. Однако данные строения требуют особого внимания к определению варианта хода из дома в гараж и типа конструкции лестницы.
Мансарда может выступать в роли гостиной, кабинета или спальни
Комфортный и удобный подъем на этаж обеспечивает лестница с большим углом наклона. Следует учесть, что такая конструкция требует большого количества свободной территории. Разумным выходом из подобной ситуации является обустройство под лестницей практичной кладовой, книжных стеллажей или вместительного шкафа для одежды или бытовых предметов.
Компактную конструкцию имеет винтовая лестница. Однако она не отличается удобством. Но в случае выбора такой конструкции требуется продумать крутизну спирали, оптимальную ширину ступеней и высоту проступей.
Вход в гараж можно организовать непосредственно из дома. В этом случае необходимо продумать конструкцию тамбура. Должны быть предусмотрены мероприятия по снижению уровня шума и обеспечению надежного барьера от проникновения в жилое помещение запахов топлива и угарного газа. Проект гаража на две машины с мансардой владельцы оценят по достоинству во время непогоды. Несмотря на это, более рациональным все равно считается один вход в гараж с улицы.
Проект
Проект гаража с мансардой составляется с учетом того, на какое количество автомобилей рассчитано сооружение. Если здание рассчитано на одну машину, то для транспортного средства достаточно будет площади 6х6 либо 6х8 квадратных метров. При необходимости размер внутреннего помещения можно увеличить в случаях, когда гараж эксплуатируется, как ремонтная мастерская.
Объем внутреннего пространство необходимо вычислить по размеру автомобиля. Длина внутреннего помещения должна превышать соответствующие габариты транспорта не менее, чем на 2-2,5 метра, ширина — на 1,5 метра.
Если гараж соединен с частным домом, то место для машины можно организовать под навесом. Под мансарду в таких случаях отводятся зоны за и над автомобилем. Еще один момент — будет ли помещение с баней или другими конструкциями, требующими подвода дополнительных коммуникаций.

Также следует учесть в проекте зону для монтажа и особенности лестницы, ведущей на второй этаж
Кроме того, нужно обратить внимание на то, для каких целей возводится мансарда, и предусмотреть установку дополнительных окон (обычно встраиваются в кровлю)
Каждый подобный нюанс следует отразить в плане. Чертеж обязательно наносится на миллиметровую бумагу. В плане также рекомендуется указать тип используемых материалов, характер расположения сооружения относительно других объектов на участке и множество других особенностей.
В связи с тем, что составить проект гаража с мансардой достаточно сложно, рекомендуется заказать план сооружения в соответствующих организациях, специализирующихся на таких конструкциях.

Выбор места под строение
Как и любое строение, кирпичный, брусовый или каркасный гараж с мансардой нуждается в подходящем месте для возведения. Компактное размещение функциональных зон внутри постройки позволяет сократить площадь основания по сравнению с другими вариантами постройки гаража, бани, мастерской и жилого помещения. Прежде чем выбрать место для сооружения с мансардным этажом, следует учесть такие моменты:
Наличие удобного подъезда. Возведение гаража в неподходящем месте приведет к постоянным проблемам с выездом и заездом.

Не на последнем месте в обустройстве любого гаража – удобный подъезд Источник rolistes.org
- Комфортное расстояние до ворот
. Постройка должна располагаться на расстоянии от 4-5 м до ворот, чтобы в случае необходимости можно было припарковать машину, не заезжая в гараж.
- Подходящие ландшафтные условия
. Для строительства нужно необходима ровная площадка, без холмов, возвышений и прочих неровностей рельефа.
- Расположение инженерных сетей
. При выборе участка под строительство следует убедиться в отсутствии коммуникаций под будущим объектом.
Если проект гаража на 2 машины с жилой мансардой предполагает возведение постройки рядом с домом, оптимальное расстояние между двумя объектами составит 5-7 метров. Во время непогоды вы сможете легко добраться до гаража, выйдя из дома. Навес над дорожкой от дома защитит от дождя или снега.
Конфигурация крыши
Типы крыш
От того, какой именно будет форма кровли, зависит очень многое. Например, двухскатная крыша даст чуть больше 60 % от площади первого этажа. Конструкция «ломаной» крыши — 90 % от основания дома. А вот если приподнять крышу на 1.5 метра, то вы получите 100% новых полезных метров. Учитывая это в индивидуальных проектах небольших домов, вы добьетесь оптимального результата.
Материалы для кровли
Новые мансардные дома с гаражом можно увидеть с металлочерепицей либо битумной черепицей на крыше. Последний вариант имеет преимущество за счет хорошего уровня шумоизоляции. Профнастил из металла, даже с использование дополнительного подклада, не защитит от звуков улицы. Керамическая черепица, имеющая массу достоинств, не всем доступна из-за высокой стоимости.
Варианты проектов для создания больших построек
Сегодня существует множество вариаций готовых проектов домов и коттеджей с мансардой и гаражом. Все они отличаются габаритами и внутренним наполнением. Существуют варианты одноэтажных и двухэтажных строений, помещений с цокольным этажом, винным хранилищем или баней.
Для строения дома с мансардой и гаражом можно воспользоваться готовым проектом
Дома с площадью более 100 м² намного проще обустроить. Фото планов строений наглядно отображают множество различных вариаций, в том числе это проекты гаража и мансарды на 2 машины. Мансардный этаж будет более вместительным благодаря большой свободной площади. Здесь существует возможность организовать несколько жилых комнат, обустроить спортзал, поставить бильярдный стол или создать просторную гостиную. Гараж, который может иметь разные габариты, несложно пристроить с любой стороны сооружения. При этом в обязательном порядке следует учитывать эстетику дома, чтобы пристройка не искажала его пропорции.
Возведение габаритного строения можно осуществлять по проекту одноэтажного дома с гаражом на 2 машины. Особенно это актуально, когда в семье насчитывается два автомобиля. Над гаражом можно организовать зимний сад, домашний кинотеатр или игровую, что наглядно отображено на фото гаража на 2 машины с мансардой.
Можно придать строению стильность и оригинальность, заменив стандартные стены мансардного этажа стеклянными. Также владельцы двух и более автомобилей по достоинству оценят проект дома с гаражом под домом, расположенным на первом этаже. Жилые комнаты в этом случае находятся в мансардном помещении, которое планируется исходя из личных предпочтений хозяев дома. Различные варианты можно увидеть на фото проектов гаража с жилой мансардой.
Вариации проектов небольших домов: фото примеры
Проекты домов с мансардой до 100 м² требуют более внимательного подхода при обустройстве жилого помещения и гаража. Если дом вытянутый и узкий, гараж пристраивают с торца. В случае квадратного строения пристройку можно выполнить с любой стороны. Еще одним вариантом, который часто предусматривается в проекте дома 6 на 8 с мансардой, является оборудование цокольного этажа, где можно обустроить гараж. Такое решение позволит получить компактное, вместительное, многофункциональное и стильное строение на небольшой территории. По соседству с гаражом можно обустроить парную или баню.
Проектирование небольшого дома с мансардой требует более внимательного подхода
Мансарда в этом случае будет иметь меньшую площадь. Здесь возможно расположение всего одной комнаты
Поэтому, чтобы получить максимум свободного пространства, особое внимание следует уделить конструкции крыши, выбрав ломаный вариант. Для дачной версии мансардное помещение может быть использовано в качестве хозяйственного помещения
В этом случае рекомендуется обустроить двускатную крышу, вследствие чего удастся существенно сэкономить на строительстве.
При создании дизайна домов часто применяются дополнительные архитектурные элементы, благодаря которым создается не только презентабельный и стильный внешний вид строения, но и расширяется свободное пространство внутри дома. Одним из таких элементов является эркер. Фото домов с гаражом и мансардой наглядно демонстрируют множество вариаций его расположения.
Также можно использовать колонны, эксклюзивные окна. Дополнительное обустройство террасы или веранды облагородит строение, сделав его более уютным. Для комфортного летнего отдыха отнюдь нелишним будет создание балкона.
Если дом имеет прямоугольную форму, то гараж лучше расположить с торца
Внимания заслуживает проект дома с мансардой (фото это наглядно отображают), где гараж покрывает плоская крыша, которая является основанием террасы. Эстетичность и элегантность конструкции достигается умелым комбинированием отделочных материалов. Для большой семьи придется по душе просторный коттедж с мансардой, увенчанной ломаной крышей, что обеспечивает максимальное целевое использование мансардного этажа.
Прежде чем определиться с конкретным вариантом, следует подробно изучить различные проекты, где в плане дома с мансардой и гаражом представлены всевозможные вариации внутренней планировки помещений. Опытные специалисты адаптируют выбранную разработку под конкретный регион и внесут необходимые изменения, основываясь на пожеланиях заказчика.
Заключение
Мансарда над гаражом – один из вариантов удачного распределения пространства и разделения постройки на функциональные зоны. Тщательно продумав планировку, получите ряд преимуществ и дополнительных возможностей. При выборе строительной компании, которая претворит вашу задумку в жизнь, следует учитывать опыт работы при выполнении подобных проектов.
Прочитать позже
Отправим материал на почту
Распечатать
Длина гаража:
Практичный минимум должен составлять 6 м, при этом оставшееся пространство используется для полок для хранения инструмента или как мастерская.
Как бы вы не использовали мансардный этаж — одно из его главных преимуществ, что шумы не достигают главного дома — самое место для мастерской или музыкальной студии.
Автономный гараж на две машины не должен быть слишком большим, чтобы не доминировать над домом.
Гараж может быть местом не только для автомобиля. Дополнительная площадь позволит вам хранить садовое оборудование и инструменты или предметы домашнего обихода , которых негде «втиснуть».
Практичный вариант гаража для семьи с частыми визитами гостей — дополнительная стоянка под навесом рядом с гаражом и гостевая комната в мансарде.
Задняя часть гаража, обращенная в сад используется как зона отдыха с мангалом.
- гараж 31,88 м²,
- места для хранения 6,69 м²,
- туалет 3,18 м²
Планировка мансардного этажа:
- прихожая 4,47 м²,
- кухня 9,86 м²,
- комната 8,45 м²,
- ванная 3,03 м²,
- балкон 8,17 м².
Если вы ищите проект гаража, которые включает в себя приятные бонусы, то обратите внимание на это решение — гараж с беседкой с мангалом
Полезная площадь гаража 17,5 м², общая площадь мансарды 38,3 м², полезная 7,3 м²
Двухэтажный гараж, отдельно стоящий, из кирпича с двускатной крышей.
В задней части постройки есть кухня и ванная комната, внешняя лестница ведет на мансардный этаж.
Планировка гаража:
- 1.1 — ванная 4,35 м²
- 1.2 — мастерская 5,71 м²
- 1.3 — кухня 14,52 м²
- 1.4- гараж 34,51 м²
- 1.5 -терраса 32,15 м²
Площадь второго этажа почти 40 м2 была разделена на 2 комнаты плюс дополнительная ванная комната и холл. Эта часть здания может быть выделена в студию, помещение под аренду или квартиру для ваших гостей.
Планировка мансарды над гаражом:
- 2.1 — лестница 4,11 м²
- 2.2 — балкон 9,81 м²
- 2.3 — холл 12,63 м²
- 2.4 — ванная 4,90 м²
- 2.5 — комната 7,79 м²
- 2.6 — комната 14,40 м²
Чтобы лучше использовать полезное пространство гаража можно совместить постройку с небольшой террасой с видом на сад.
Планировка гаража и мансарды:
- гараж 29,90 м²
- кладовка 5,20 м²
- коридор 5,40 м²
- терраса 20.00 м²
- лестница 5,00 м²
- прихожая 13.00 m²
- ванная 4,60 м²
- спальня 9,70 м²
- гостиная 11,30 м²
- кухня 4,40 м²
Если вы планируете построить двухэтажный гараж с квартирой на чердаке, этот проект может оказаться настоящим хитом. Гараж представляет собой классическое кирпичное здание в форме, увенчанное крутой двускатной крышей. Традиционная архитектура гаража позволяет легко вписывать в любую среду.
Двое ворот, 260 х 224 см, ведут к гаражной части, запланированной на первом этаже. Внутри можно легко припарковать три машины, есть также место для велосипедов, косилок, мотоциклов или другого оборудования. Дополнительные функции хранения или небольшой мастерской будет выполнять небольшое подсобное помещение, размещенное в углу гаража.
Планировка мансарды над гаражом:
- 2.1 — холл 14,16 м²
- 2.2 — кухня 4,17 м²
- 2.3 — ванная 3,59 м²
- 2.4 — комната 18,76 м²
- 2.5 — комната 15,29 м²
- 2.6 — балкон 4,86 м²
При планировании постройки гаража стоит задуматься об использовании пространства возле него , так этот проект гаража расширяет свою функциональность с помощью небольшого навеса, который служит дополнительным местом для парковки, а с другой стороны — является балконом для второго этажа.
Любое дополнительное пространство в гараже , такие как, полки , рабочие столы и шкафы , позволит более широко использовать эту площадь для различных целей. Чем больше места в гараже, тем удобнее будет им пользоваться.
Мечта многих водителей — хорошо оборудованная небольшая домашняя мастерская, которую, в идеале, хотелось бы использовать как свое личное пространство, и ваш гараж идеально подходит для этой цели.
Давайте подумаем о гараже в более далекой перспективе — ведь, жаль не использовать его для других целей. Из захламленного редко используемого помещения вы можете создать просторный, практичный и функциональный интерьер, который будет использоваться каждым членом семьи.
Что вы думаете о мансарде над гаражом? Мы что-то забыли или вы с чем-то не согласны? Пишите свои : все предложения приветствуются.
Заключение
Мансарда над гаражом – один из вариантов удачного распределения пространства и разделения постройки на функциональные зоны. Тщательно продумав планировку, получите ряд преимуществ и дополнительных возможностей. При выборе строительной компании, которая претворит вашу задумку в жизнь, следует учитывать опыт работы при выполнении подобных проектов.
Прочитать позже
Отправим материал на почту
Распечатать
Длина гаража:
Практичный минимум должен составлять 6 м, при этом оставшееся пространство используется для полок для хранения инструмента или как мастерская.
Как бы вы не использовали мансардный этаж — одно из его главных преимуществ, что шумы не достигают главного дома — самое место для мастерской или музыкальной студии.
Автономный гараж на две машины не должен быть слишком большим, чтобы не доминировать над домом.
Гараж может быть местом не только для автомобиля. Дополнительная площадь позволит вам хранить садовое оборудование и инструменты или предметы домашнего обихода , которых негде «втиснуть».
Практичный вариант гаража для семьи с частыми визитами гостей — дополнительная стоянка под навесом рядом с гаражом и гостевая комната в мансарде.
Задняя часть гаража, обращенная в сад используется как зона отдыха с мангалом.
- гараж 31,88 м²,
- места для хранения 6,69 м²,
- туалет 3,18 м²
Планировка мансардного этажа:
- прихожая 4,47 м²,
- кухня 9,86 м²,
- комната 8,45 м²,
- ванная 3,03 м²,
- балкон 8,17 м².
Если вы ищите проект гаража, которые включает в себя приятные бонусы, то обратите внимание на это решение — гараж с беседкой с мангалом
Полезная площадь гаража 17,5 м², общая площадь мансарды 38,3 м², полезная 7,3 м²
Двухэтажный гараж, отдельно стоящий, из кирпича с двускатной крышей.
В задней части постройки есть кухня и ванная комната, внешняя лестница ведет на мансардный этаж.
Планировка гаража:
- 1.1 — ванная 4,35 м²
- 1.2 — мастерская 5,71 м²
- 1.3 — кухня 14,52 м²
- 1.4- гараж 34,51 м²
- 1.5 -терраса 32,15 м²
Площадь второго этажа почти 40 м2 была разделена на 2 комнаты плюс дополнительная ванная комната и холл. Эта часть здания может быть выделена в студию, помещение под аренду или квартиру для ваших гостей.
Планировка мансарды над гаражом:
- 2.1 — лестница 4,11 м²
- 2.2 — балкон 9,81 м²
- 2.3 — холл 12,63 м²
- 2.4 — ванная 4,90 м²
- 2.5 — комната 7,79 м²
- 2.6 — комната 14,40 м²
Чтобы лучше использовать полезное пространство гаража можно совместить постройку с небольшой террасой с видом на сад.
Планировка гаража и мансарды:
- гараж 29,90 м²
- кладовка 5,20 м²
- коридор 5,40 м²
- терраса 20.00 м²
- лестница 5,00 м²
- прихожая 13.00 m²
- ванная 4,60 м²
- спальня 9,70 м²
- гостиная 11,30 м²
- кухня 4,40 м²
Если вы планируете построить двухэтажный гараж с квартирой на чердаке, этот проект может оказаться настоящим хитом. Гараж представляет собой классическое кирпичное здание в форме, увенчанное крутой двускатной крышей. Традиционная архитектура гаража позволяет легко вписывать в любую среду.
Двое ворот, 260 х 224 см, ведут к гаражной части, запланированной на первом этаже. Внутри можно легко припарковать три машины, есть также место для велосипедов, косилок, мотоциклов или другого оборудования. Дополнительные функции хранения или небольшой мастерской будет выполнять небольшое подсобное помещение, размещенное в углу гаража.
Планировка мансарды над гаражом:
- 2.1 — холл 14,16 м²
- 2.2 — кухня 4,17 м²
- 2.3 — ванная 3,59 м²
- 2.4 — комната 18,76 м²
- 2.5 — комната 15,29 м²
- 2.6 — балкон 4,86 м²
При планировании постройки гаража стоит задуматься об использовании пространства возле него , так этот проект гаража расширяет свою функциональность с помощью небольшого навеса, который служит дополнительным местом для парковки, а с другой стороны — является балконом для второго этажа.
Любое дополнительное пространство в гараже , такие как, полки , рабочие столы и шкафы , позволит более широко использовать эту площадь для различных целей. Чем больше места в гараже, тем удобнее будет им пользоваться.
Мечта многих водителей — хорошо оборудованная небольшая домашняя мастерская, которую, в идеале, хотелось бы использовать как свое личное пространство, и ваш гараж идеально подходит для этой цели.
Давайте подумаем о гараже в более далекой перспективе — ведь, жаль не использовать его для других целей. Из захламленного редко используемого помещения вы можете создать просторный, практичный и функциональный интерьер, который будет использоваться каждым членом семьи.
Что вы думаете о мансарде над гаражом? Мы что-то забыли или вы с чем-то не согласны? Пишите свои : все предложения приветствуются.





































