Правило 1. Все решает притолока.
Какая у вас притолока? Так начинается общение с человеком, решившим заказать секционные ворота. Дело в том, что для размещения конструкции ворот требуется место справа, слева, и больше всего, над проемом. И да, это место над проемом ворот и есть притолока.
Та самая пресловутая притолока.
Какая она должна быть, зависит от следующих параметров
У вас проем до 8м2
Для небольших бытовых гаражных ворот площадью до 8м2 устанавливаются пружины растяжения. Высота притолоки должна быть не меньше 100мм (для ручного подъема) и 125мм для ворот с приводом. Это в теории. А на практике, что бы не вылавливать миллиметры, делайте 150мм.

Пример ворот с пружинами растяжения. Видно как мало места ворота занимают над проемом.
У вас проем больше 8м2

Пример ворот с торсионными пружинами. Места над проемом требуется значительно больше.
Вы хотите встроить калитку
Для всех ворот с калиткой, независимо от размера, нужна притолока не меньше 210мм, (стандартный монтаж).
Ворота с калиткой всегда идут с торсионными пружинами.
Что делать, если у вас высокая (больше метра) притолока?
Если у вас притолока 500мм и больше, вам сказочно повезло, и вам доступен так называемый высокий монтаж, когда ворота сначала поднимаются максимально к потолку, а уже затем уезжают параллельно потолку. См. рисунок, так понятнее.

Высокий монтаж. Заводской чертеж.
Преимущество: ворота не висят над головой, не нужны длинные подвесы.
Недостатки: высокий подъем доступен не во всех сериях, и за него нужно доплачивать 8% от стоимости ворот.
Что делать, если у вас низкая (меньше 210мм) притолока?
А если у вас притолока меньше 210мм, а нужны ворота больше 8м2, или нужна калитка? Вам поможет низкий монтаж!
Это когда вал с пружинами располагается сзади, в глубине гаража (см. рисунок). В этом случае минимальный размер притолоки будет 100-130мм, в зависимости от типа управления.
Недостаток: доплата 5%.

Низкий монтаж. Заводской чертеж.
Необходимые материалы и инструменты
Количество необходимых материалов для сооружения ворот для собственного гаража может изменяться в зависимости от их размеров, а также выбранной конструкции. Однако если вы предпочтете самый простой вариант изготовления конструкций из металла подъемного типа, то вам потребуются следующие материалы:
- деревянные бруски 120×80 мм. Они будут использоваться для изготовления коробки;
- деревянные бруски 100×100 мм, которые будут применены для потолка;
- уголки из металла 40×40×4 мм для рельс;
- металлический прут диаметром 8 мм;
- пружина с внутренним диаметром 30 мм;
- металлические уголки 35×35×4 мм. Они будут нужны для изготовления рамы;
- штыри из металла. Они понадобятся для закрепления конструкции;
- швеллер 80 на 45 мм;
- полотно для створки.
Эти материалы вам потребуются для того, чтобы своими руками изготовить ворота в гараж с ручным режимом подъёма. Если у вас есть желание установить систему автоматического привода, чтобы облегчить себе процесс, то придется приобрести ее дополнительно.
При выполнении работы по сооружению и установке таких ворот в гараже из инструментов потребуются:
- сварочный аппарат;
- дрель со сверлами по металлу и дереву;
- болгарка.
Кроме этого, необходимо подготовить привычный набор инструментов, который есть в арсенале у каждого настоящего хозяина:
- карандаш;
- уровень;
- гаечные ключи;
- отвёртка;
- рулетка;
- молоток.
Изготовление рамы
Чертеж запирающей конструкции
Первым делом необходимо сделать раму, являющейся основной частью для удержания всей конструкции. Изготавливать ее лучше еще с момента строительства стен. Начинать можно после возведения примерно половины объема гаража. После прерваться, выполнить рамку для гаражных ворот своими руками и продолжить строить дальше.
Придется потратиться на приобретение необходимых частей для ворот, но это намного дешевле, чем приобретать готовую конструкцию у мастеров. Состоит рамка из двух частей, располагаемых внутри и снаружи объекта. Действовать следующим образом:
1.С помощью болгарки режется уголок, по длине равный ширине ворот – 4 части. Далее отрезается 4 отрезка, равные высоте воротного отверстия. Делать можно как с небольшим запасом, так и вровень.
Процесс изготовления рамки
2.Уголки укладываются на ровную плоскость, проверяется все это с помощью уровня. Углы устанавливаются строго по 90о.
3.Свариваются уголки, чтобы вышла цельная рамка.
Сваривание рамки
4. Все остатки после сварочных работ удаляются с помощью шлифования. Наружная сторона должна быть идеально ровной.
https://youtube.com/watch?v=5WEpOnTbuao
Выбор замков для гаражных ворот
Чтобы цена запорного устройства была не слишком высокой, а надежность выше его можно изготовить своими руками. Для этого, так же как и на ворота, разрабатывается чертеж запоров для гаражных ворот.
Простой накладной замок на ворота
Инструкция по изготовлению замка состоит в следующем:
- Изготавливается основа замка из металлической пластины.
- Вырезаются две накладки, ширина которых 22 и 120 миллиметров.
- Выполняется гибка накладок в тисках по эскизам.
- Делается задвижка.
- Изготавливается по чертежу направляющая трубка диаметром 10 миллиметров, из которой будет сделан ключ замка. Длина элемента зависит от толщины изготовленных ворот.
- Накладки привариваются к краям основания.
- Сверлятся отверстия для крепления замка к двери.
- Трубка аккуратно приваривается перпендикулярно к основе.
- В накладки вставляется задвижка, в которую ввинчиваются винты диаметром М4, примерно восемь миллиметров длиной. Они будут ограничителями хода задвижки.
Для тех, кто хочет изготовить гаражные ворота своими руками, схема, чертеж сборки конструкции, чертежи отдельных ее элементов, разработанные специалистами, обеспечат качественный монтаж устройства.
Основные типы монтажа
В первую очередь важно отметить, что секционные гаражные ворота будут монтироваться в соответствии с местом нахождения направляющих, торсионного вала и остальных важных элементов механизма. Безусловно, можно говорить об основной типологии помещений, но на самом деле специалисты уверяют, что в случае с секционными воротами ее не существует
Каждый проем отличается уникальностью:
- крыши со склоном:
- перемычек;
- инженерных сетей под потолком.
На сегодняшний день известно сразу три разновидности монтажа гаражных секционных ворот, которые можно производить своими руками. В случае с промышленными конструкциями количество видов установки увеличивается до десяти. Становится понятно, что так можно заниматься монтажом любых проемов.
Факторы, влияющие на размеры гаражных ворот
При расчёте размеров ворот для гаража следует учитывать следующие факторы:
Количество автомобилей
Важно заранее определиться с максимальным количеством автомобилей, которые будут одновременно проезжать через ворота и находиться в гараже. В большинстве случаев закладывают ширину для въезда одной или двух машин, но некоторые конструкции могут быть использованы и для большего количества транспортных средств.
Размеры автомобилей
Необходимо знать точные габаритные параметры машин, которые будут въезжать в гараж. При этом нужно помнить, что автомобили могут меняться, поэтому желательно делать достаточный запас на этот случай. Основные параметры транспортного средства — это длина, ширина и высота. Помимо фактической высоты автомобиля, нужно иметь в виду то, что он может быть оснащён багажником, а на нём — закреплён груз, объём которого тоже нужно учитывать. Поэтому в расчёт брать не фактическую, а наибольшую возможную высоту транспортного средства. Автомобиль должен свободно проезжать через ворота, никаким образом их не задевая.
Угол подъезда к гаражу. При определении размеров ворот следует оценить близлежащую территорию и находящиеся рядом конструкции. Например, если проезд расположен под углом к плоскости ворот, то потребуется большая ширина проёма, нежели при условии перпендикулярного размещения проезда. Этот фактор влияет и на выбор оптимальной конструкции ворот.
Тип конструкции ворот. Рынок сейчас предлагает огромное разнообразие видов систем. Они различаются по направлению и механизму открывания, вариантам изготовления и расположению полотна относительно проёма и другими характеристиками. Соответственно каждая конструкция имеет свои особенности, в том числе и размеры. В некоторых случаях автоматические механизмы, сами полотна и крепления могут занимать в проёме дополнительное место, которое при расчёте необходимо учитывать.
Производитель. После того как размеры и тип гаражных ворот определены, нужно сразу выбирать производителя ворот. В большинстве случаев они выпускаются серийно с унифицированными размерами, которые, возможно, не будут соответствовать вашим расчётам. В таком случае нужно искать изготовителя, который сделает их по индивидуальному заказу. Зачастую это приводит к увеличению стоимости. Предварительный выбор определённой модели важен ещё тем, что есть возможность запросить все технические характеристики ворот и узнать необходимые требования для их установки.
Самодельные ворота
Если владельцем принято решение изготавливать их самостоятельно, то помимо вышеперечисленных факторов следует обратить внимание и на соотношение массы полотен к ширине проёма. Ведь детали и элементы заводских ворот рассчитываются на нагрузки с учётом их массы, размеров и способа открывания
Для самодельных же нужно произвести точные геометрические замеры и обеспечить достаточную жёсткость и прочность. Несоблюдение этого правила может привести к провисанию полотен или повреждению крепления. Рассчитываются самодельные ворота по аналогии с заводскими.
Основные условия, которые должны выполняться при определении размеров гаражных ворот:
- высота ворот составляет на 20 см больше наибольшей высоты автомобиля;
- ширина должна быть больше размеров автомобиля на расстояния, указанные ниже в таблице в зависимости от расположения проезда (табличные значения применимы только для тех транспортных средств, размеры которых не превышают 6 м в длину и 2 м в высоту).
Таблица: определение ширины ворот
| Расположение проезда по отношению к плоскости гаражных ворот | Расстояние, на которое размеры ворот превышает ширину автомобиля |
| перпендикулярно | 0,7 м |
| под углом | 1 м |
Если проём предполагает одновременный заезд двух автомобилей, то при расчёте ширины ворот следует учитывать расстояние между автомобилями, которое должно быть более 0,5 м.
Как сделать подъемного типа ворота для гаража: пошаговая инструкция
Ниже поэтапно разберем создание створок, обшитых профнастилом. Укажем наиболее важные моменты при монтаже.
Инструменты, материалы
Для работы понадобятся:
- Профнастил толщиной 0,7 мм для обшивки.
- Профильная труба размерами 20*40 мм, толщиной 2 мм для рамы.
- Металлический уголок 40*40 мм, толщиной 4 мм.
- 2 пружины диаметром 30 мм.
- 2 ролика для болтового крепления. Ширина зависит от размеров направляющих.
- Из крепежных элементов ‒ анкерные болты 30 см, саморезы ‒ 10 см.
- Стальной лист толщиной 4 мм.
- Швеллер ‒ 40*80 мм.
Из инструментов должны быть:
- набор гаечных ключей;
- шуруповерт;
- электродрель;
- молоток;
- отвертка;
- рулетка, уровень, маркер или карандаш;
- болгарка;
- сварочный аппарат.
Подготовка проема
До начала установки стоит учесть, что гаражный проем под ворота должен соответствовать таким требованиям:
- Наличие достаточного свободного пространства для крепежа направляющих.
- Ровность стен как по вертикали, так и по горизонтали.
- Соответствие несущей способности к будущей нагрузки от ворот.
Помещение, возведенное из бетонных блоков или полнотелого кирпича, достаточно надежное и не нуждается в усилении для крепежа направляющих. А вот конструкции, собранные из пустотелых пеноблоков, досок, газоблоков, потребуется усилить или просто отказаться от ворот с подъемником и выбрать другой тип.
С целью усиления на стены наносят в несколько слоев штукатурку или фиксируют по торцам дверного проема металлические уголки размерами 50*50 мм, 75*75 мм.
Создание коробки
Главной силовой деталью будущих ворот станет коробка, вмонтированная в проем, поскольку именно на нее будет приходиться основная нагрузка.
Сделать ее можно из бруса или металлического уголка. Рассмотрим второй вариант. Он более надежен.
Элементы монтируются в виде буквы П: два по бокам и один сверху.
Уголки скрепляем анкерными болтами. Нижнюю часть рекомендуется заглублять минимум на 2‒3 см в пол.
Сборка рамы, установка направляющих
Описание по изготовлению рамы выглядит так:
- Профильная труба режется болгаркой на нужные размеры в соответствии с чертежом.
- Готовые детали раскладываются на ровном столе или любой ровной плоскости. Проверяется соблюдение прямых углов.
- Места стыков прихвачиваются сваркой.
- Проверяется длина диагоналей. Если отклонений не обнаружено, то выполняется сплошное приваривание стыков.
- Для повышения жесткости рамки по углам допускается приварить косынки.
- Все швы зачищаются. Конструкцию покрывают антикоррозийной грунтовкой.
- Проводится пробная установка в проем. Проверяется соблюдение уровня.
Теперь нужно приступать к созданию другой рамы, которая будет под потолком:
- Делаются два направляющих под ролики. Проще всего сварить их из металлических уголков.
- Крепятся к опорным балкам болтами.
- Сюда же присоединяются сделанные из швеллера рычаги для открытия и закрытия створки.
- Пружины фиксируют к краям рычагов, на опоры, движущиеся кронштейны.
Все соединения проверяются на соблюдение вертикали, горизонтали.
Обшивка, фиксация створки
Порядок работ:
- Готовая рамка кладется на горизонтальную плоскость.
- К ней кровельными саморезами с резиновым уплотнителем прикручиваются листы профнастила. Шаг крепежа ‒ от 15 до 20 см.
- Болтами фиксируется ручка для открывания полотна.
- Створка выставляется в проеме. Проверяется крепление рычагов пружин.
- Проверяется работа ворот. Если створка движется плавно, то ее снимают и фиксируют болтами рычаги.
- Регулируется натяжение пружин.
При механическом управлении ставится запорное устройство, замок.
Утепление ворот
Для теплоизоляции лучше всего подойдут плиты пенопласта или пенополистирола. Минеральная вата также допустима, но со временем она дает усадку.
Пенополистирол нужно брать толщиной 4 см, плотностью 20 кг/ куб. м. Сначала проводятся замеры, обрезаются подходящие куски материала.
Крепятся плиты к профнастилу изнутри помещения жидкими гвоздями. Сверху саморезами со сверлом монтируется стальной лист.
Монтаж системы управления
Для повышения комфорта эксплуатации к ручному способу открытия добавляют автоматический с электроприводом.
В стандартный комплект входят:
- блок управления;
- приемник сигнала;
- пульт дистанционного управления.
Краткий порядок установки автоматики:
- Створка проверяется на наличие зазоров.
- По инструкции производителя выполняется сборка привода.
- По центру потолка фиксируется направляющая балка.
- В задней части балки крепятся кронштейны на дюбеля.
- Монтируется привод.
- Крепится рычаг. Одну его часть фиксируют к створке, вторую ‒ к тросу.
- Прокладывается электрическая проводка.
- Выполняется пробный запуск.
Монтируем несущую раму
Первый этап работ после приобретения необходимых материалов и подготовки инструментов – изготовление и монтаж несущей рамы.
Данный элемент состоит из внутренней и наружной частей. Работы выполняются в такой последовательности:
- с помощью болгарки отрезается восемь кусков уголка, длина четырех из них – по ширине конструкции, остальных – по размеру высоты;
- нарезанный уголок раскладывается на плоскости, угольником проверяется прямолинейность углов между элементами;
- сваривается рама;
- наружная сторона стыков тщательно выравнивается болгаркой.
Чтобы конструкцию не повело при сварке, рекомендуется предварительно выполнить прихватки и зафиксировать элементы стальным арматурным прутом, впоследствии срезаемым. Дополнительную жесткость конструкции придадут небольшие куски металлических уголков, вваренных по углам.

Установка замка
В большинстве случаев устанавливают 2 вида замков – навесные или врезные
Важно устройство замкового механизма. Чтобы зимой не пришлось отогревать замок горящими бумажками, лучше приобрести устройство сувальдного типа, в котором установлены жесткие пружины

Схема для изготовления дверей из профтрубы
Для усиления изготавливают штыревые стопоры на створки ворот и мощный запор. Это позволит закрыть их с внутренней стороны гаража, но придется установить входную дверцу в полотне ворот. Монтаж качественного дорогого замка не решит всех проблем, но правильная установка серьезно усложнит возможный взлом гаража.
При установке нужно следовать нескольким важным правилам:
- Все запорные элементы гаража желательно устанавливать самостоятельно. Чем меньше чужих людей знает о конструкции ворот и об установленных запорах, тем выше безопасность вашего автомобиля.
- Корпус замка нельзя размещать прямо на внешнем металлическом листе обшивки ворот.
- Нежелательно использовать внешнюю декоративную накладку, продающуюся с замком. Для защиты замка от влаги лучше изготовить самодельное приспособление, так как дорогие фирменные детали привлекут к гаражу злоумышленников.

Установка запорных конструкций
Фирменная накладка, установленная на замок ворот, – явное указание для криминальных элементов, что в гараже есть что-то очень ценное. Кроме того, данный элемент дополнительно указывает на конструкцию замка. Это повышает возможность взлома и ускоряет работу преступника.

Утепление дверей
Шаг 1. Замеры
Первое, что необходимо сделать перед тем, как установить секционные ворота самому, — произвести замеры проема
Важно, чтобы все расчеты были выполнены максимально точно, потому что ошибка даже в несколько миллиметров грозит серьезными последствиями — перекосом конструкций, их некорректной работой и быстрой поломкой
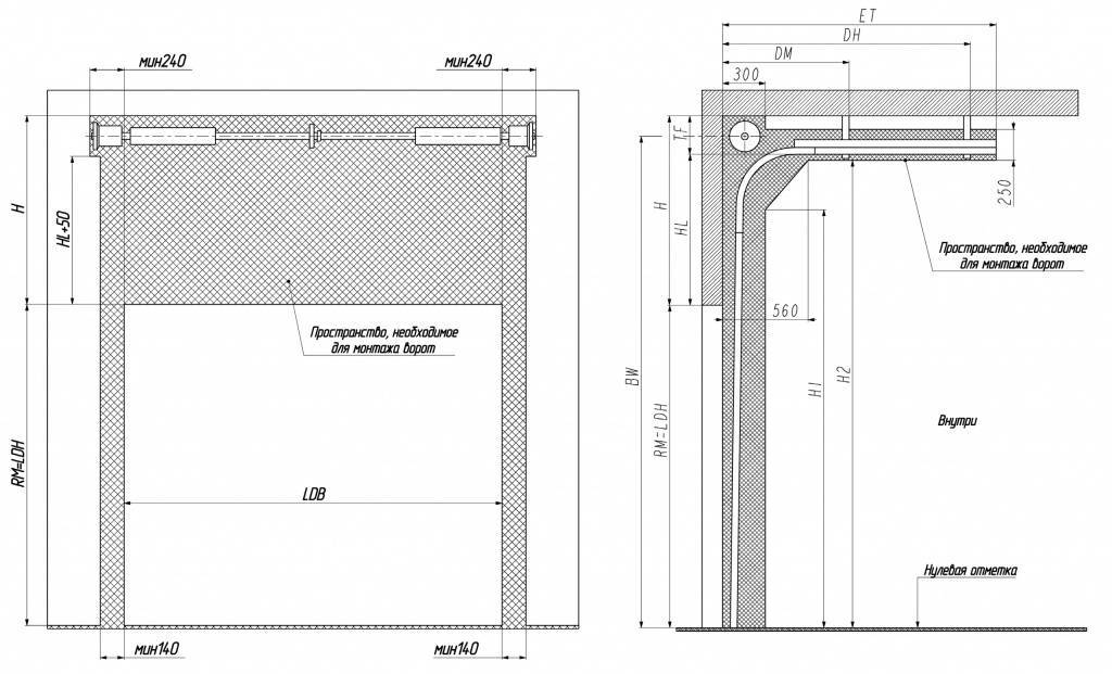
Чтобы правильно смонтировать подъемные ворота, необходимо определить ширину и высоту проема, глубину помещения, высоту притолоки, а также ширину пристенков (рис. 1).

рис. 1
Ширину проема измеряют по трем точкам (рис. 2). Для обеспечения беспрепятственного въезда в гараж и выезда из него данный показатель должен превышать ширину автомобильного кузова с учетом боковых зеркал на 60-80 см.

рис. 2
Высота проема также определяется по трем точкам (рис. 3). Она должна быть на 20-30 см больше высоты автомобиля. Если же у ворот планируется ручное управление, то — от 35 до 50 см
Кроме того, важно учесть, предусмотрены ли на крыше машины антенна или дополнительный багажник

рис. 3
Чтобы воротное полотно при открытии могло беспрепятственно разместиться под потолком и при этом хватило места для установки автоматики, важно предусмотреть достаточную глубину гаража. Вычисляется она по следующей формуле: высота проема + 100 см
Следующим шагом рассчитываем высоту притолоки (перемычки), которая важна для последующей корректной установки направляющих профилей и пружинного механизма:
- Если площадь ворот не превышает 8 м², то высота притолоки должна быть в пределах 130-500 мм.
- Если площадь воротного полотна более 8 м² — не менее 210 мм.
Чтобы обеспечить возможность надежно закрепить вертикальные направляющие, необходимо измерить боковые пристенки. Их ширина должна превышать 125 мм.
Как тип гаражных ворот отражается на размерах проема?
Основное отличие ворот разных типов — в принципе их работы. От того, где располагается полотно или створки при открытии, зависит необходимый размер и проема, и помещения.
Например, выбирая секционные конструкции для своего гаража, важно помнить о том, что его глубины должно хватать для свободного размещения полотна под потолком. Чтобы рассчитать нужную глубину, прибавьте к высоте проема 50 см

Еще одна важная деталь, о которой не стоит забывать, — высота перемычки. Это место на стене между краем проема и потолком, где монтируются торсионный механизм и направляющие, без которых секционные ворота не смогут работать. С учетом этого для небольших ворот площадью до 8 кв. м советуем предусмотреть перемычку от 100 мм (механическое управление) или от 130 мм (управление с пульта), а для более внушительных конструкций — от 210 мм.
Кстати, заранее позаботившись о необходимой высоте перемычки, можно упростить себе жизнь и сэкономить, заказав ворота без доплаты за нестандартный тип монтажа. Если же притолока в вашем гараже в нужные параметры никак не вписывается, всегда можно приобрести конструкции с высоким или, наоборот, низким монтажом.
И, наконец, последнее условие, которое необходимо учитывать, — ширина пристенков. Оптимально, если они будут сделаны из бетона или камня, а их ширина будет не менее 125 мм. Это позволит надежно закрепить на них угловые стойки с вертикальными направляющими.



































