Видео
Посмотрев ролик, вы узнаете, какие полки можно сделать из гипсокартона своими руками.
Если пол ровный, тогда разметка для полок осуществляется от него рулеткой. Высота для этих элементов выбирается в каждом случае индивидуально. При этом следует учитывать размеры предметов, которые будут размещаться на стеллаже из гипсокартона своими руками. Чтобы придать конструкции дополнительную прочность, с каждой стороны фиксации такого профиля вкручивается по 2 самореза. В тепличных помещениях лучше всего использовать алюминиевый профиль.
Магазинами предлагается достаточно много разного профиля из алюминия, из которого можно составить стеллажи из профиля своими руками. Если у вас в теплице система самополива, то такие конструкции подходят лучше всего. Сначала собирают основной каркас. На момент сборки необходимо закрепить кронштейны для полок на профиле после того, как соберут каркас для полок. Стойки скрепляют либо болтами, либо сваркой.
Для стеллажа в комнату используют болты, и заглушки.
- болты, гайки, сварка с электродами;
- возможно понадобится сварка, если стеллаж делают из металла;
- болгарка для нарезки стоек;
- чертежи, набор кистей или поролоновая губка;
- оцинковка или краска;
- комплект профилей, полок, роликов.
- несущий профиль. Выбирается в зависимости от предполагаемой нагрузки. Если она будет незначительной, то можно ограничиться изделиями из тонкой стали, однако перестраховаться и приобрести более прочный профиль лишним не будет;
- направляющий профиль. Из него формируется костяк стеллажа, по причине чего покупка прочной продукции является обязательной;
- арочный профиль. Требуется для изготовления изгибов, так как может принимать любую форму за счет нанесенных поперечных надрезов;
- гипсокартон;
- краска. Используется чаще всего, так как позволяет создать неповторимый вид, использованием нескольких цветов, комбинируя их в причудливые узоры;
- обои. Также пользуется популярностью, но используется несколько реже;
- зеркала. Вставленные в ниши, они способствуют визуальному увеличению помещения, к тому же выглядят весьма необычно.
Чтобы процесс создания ниш из ГКЛ с полками для дома или квартиры не был сложным, необходима пошаговая инструкция, на основании которой надо работать.Чертеж с размерами для монтажа гипсокартонной полки Чтобы все получилось быстро, и результат порадовал, нужно поочередно выполнять инструкцию. Очередность работ следующая: Выполняя работу с полками из ГКЛ в правильном порядке, владелец недвижимости в любом случае останется доволен результатом и качественно обустроит пространство помещения. На основании всего вышеизложенного можно принимать решение. Если вы хотите брать готовый вариант, то хорошо подойдут стальные стеллажи. Если же решили справиться своими силами, то проще всего использовать профиль для гипсокартона.
Для безопасности некоторые мастера дополнительно крепят стеллаж к стене с помощью дюбелей. Это исключает опрокидывание стеллажа даже под высокими нагрузками. У многих возникает вопрос: выдержит ли профиль нагрузку находящихся на полках предметов?
Профиль 50*25 мм выдерживает полку книг без какого-либо усиления. Если же стеллаж предназначен для чего-то более массивного, то применяют винты-бабочки, рамы для усиления, специальные траверсы, а также более толстые гипсокартонные листы (не менее 18 мм) или, что еще лучше, полки из металла или дерева. При таком усилении стеллаж выдерживает даже бытовую технику, поэтому смело можно идти в магазин за профилем и начинать работу.
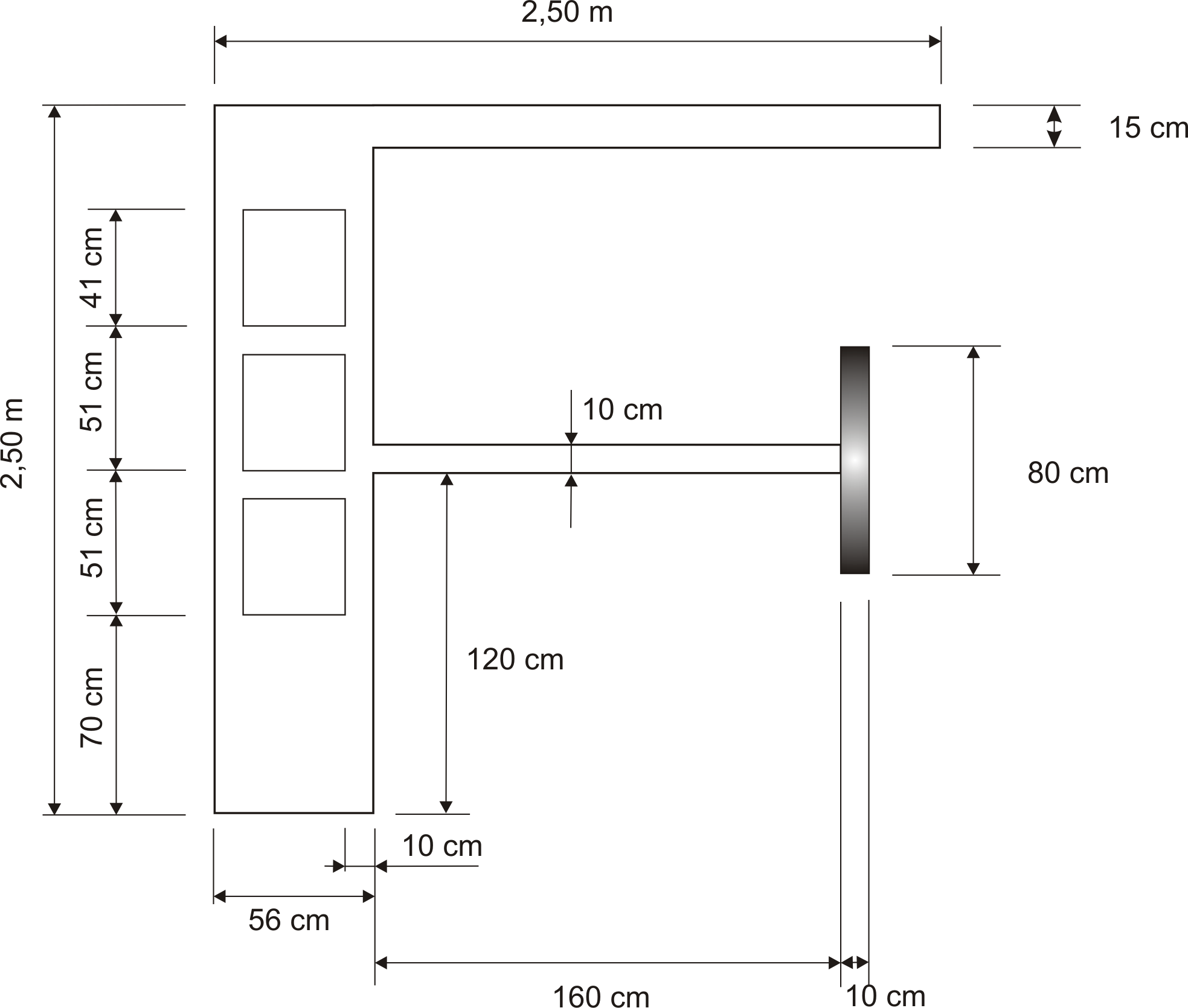
Перед тем как сделать полки из гипсокартона своими руками, нужно сделать эскиз и составить план каркаса. Это поможет рассчитать нужное количество материала и грамотно собрать конструкцию из профилей.
При сборке встроенных ниш или полок с выносом вертикалей стойки потребуется установить и по фасаду конструкции. Для этого по намеченным на полу и потолке линиям укладывают и фиксируют перемычку. На ее концах ставят вертикальные опоры: Использование профиля и направляющих при создании каркаса является главным этапом в процессе создания полок. От этого процесса буквально зависит все.
Сначала создаются полки из профиля для гипсокартона, а потом они обшиваются самими листами. Но давайте обсудим все более подробно. Чтобы знать, как сделать полки из гипсокартона своими руками, нужно уметь крепить направляющие к стоечному профилю.
Прямоугольный каркас делается из одного профиля и трех направляющих. Их нужно правильно соединить между собой. Делается это одним из двух способов:
Возведение каркаса
Для создания полки из гипсокартона в спальне, гостиной, прихожей, в общем, в любом помещении, где нормальная влажность, используется обычный гипсокартон и несколько видов профилей.
- Направляющий профиль, он устанавливается первым, а уже с ним стыкуются остальные рейки профиля. Он обладает большей прочностью, чем обычный профиль.
- Арочный, это обыкновенный профиль, который производитель задумал для создания изгибов в изделии, соответственно арочный профиль имеет надрезы, по которым его можно сгибать. Его покупка не обязательна, так как можно просто надрезать стандартный профиль, который ничем не будет отличаться от этого.
- Несущий профиль. Он обладает повышенной устойчивостью к сгибанию, поэтому он будет использоваться для создания полок. Если нужно, чтобы полка выдерживала очень большие нагрузки, то просто необходимо удвоить количество направляющих, которые установлены на стену, и количество несущих реек, которые поддерживают полки. В том случае, если вы не планируете ставить ничего тяжелого на полку, а просто хотите создать её как декорацию, то можно применять стандартный профиль.
Вам стоит понимать, что нет конкретной инструкции по созданию каркаса для полки из гипсокартона своими руками. Если бы вы заказали изготовление полку у специалиста, то он бы просто укрепил каркас, зависимо от формы полки, которую вы ему заказали. Вам стоит поступать так же. То есть, вы находите слабы места в форме ваше полки, после чего, в зависимости от предназначения и предполагаемой нагрузки на полку, создаете каркас под нее. При изготовлении из гипсокартона полки, нужно, также, учитывать, что листы гипсокартона сами могут сломаться под большим весом, поэтому, чем больше под ним будет реек профиля, тем прочнее будет вся конструкция.
Ещё один совет, который позволит сделать более прочным такое изделие, как полка из гипсокартона, это шаг между саморезами, которые крепят профиль к стене и между собой. Чем он меньше, тем более надежным будет крепление, но бывает и такое, что крепление выдерживает, а сам профиль нет, поэтому не нужно делать шаг между саморезами меньше 7–9 сантиметров.
Предпоследним пунктом в нашей статье про то, как сделать полку из гипсокартона, станет обшивка каркаса гипсокартоном
Обшивка ниши из ГЛК
Тем, кто уже работал с данным материалом, процесс знаком и труда не составит – принципы обработки те же, что и при сухом выравнивании стен.
- Листы раскраиваются по размерам. Простые формы вычерчиваются и обрезаются, для сложных сначала делается лекало из плотной бумаги, а после переносится на ГКЛ.
- Порезка по прямой ведется ножом (строительным или канцелярским) или узкой ножовкой.
- Изогнутые поверхности выполняются из потолочного гипсокартона – он тоньше и может быть изогнут без предварительной подготовки.
- Раскроенные элементы крепятся к профилям саморезами с шагом в 30-50 сантиметров. На прямых участках он может быть более длинным, на радиусных – более частым.
- Начинать обшивку следует с наружных боковин. За ними идут внутренние стенки и полки. В последнюю очередь закрывается фронтон. Передний лист ГЛК должен закрывать срезы боковых.
- Все швы заделываются лентой для стыков и клеем (к примеру, «Фугенфлюгер»), после чего шпаклюются.
- Наружные углы укрепляются перфорированным уголком, который фиксируется шпаклевкой или клеем для стыков.
- По окончании сборки производится чистовые шпатлевка и отделка.
Отдельно хотелось бы поговорить о полках. В нишах из гипсокартона в спальне лучше выполнить их тоже из ГКЛ. А вот конструкции в гостиной эффектнее смотрятся со стеклянными полками – если вы не против их регулярно мыть. Там, где предполагается высокая нагрузка (в кухне, шкафу под книги или в нише под тяжелый телевизор), полки разумнее выполнить из более крепкого материала – толстой плиты ДСП или мебельной столешницы.
Автор статьи
Полки из гипсокартона своими руками
Сначала нужно выбрать для чего будет предназначена ваша будущая полка из гипсокартона.
Если вы планируете на полки ставить или класть что-то тяжёлое, то её стоит делать очень прочной. Если у вас в планах на полку из гипсокартона установить телевизор или другую тяжёлую технику, то каркас полки укрепляют профилем.
В этом случае не подойдёт обычный профиль, а подойдут уголки из металла, на них и будут закреплены детали из гипсокартона.
Такая мера необходима и ей нельзя пренебрегать.Это нужно, чтобы полка была прочной выдержала все нагрузки.
Если полка будет, только декоративным элементом, то конструкцию можно сделать лёгкой. И так вы выбрали дизайн и прочность полки из гипсокартона, теперь можете начинать подготовку нужных инструментов и расчёту количества материала.
Как сделать полки на стене из гипсокартона криволинейной конфигурации
Создание криволинейных систем хранения из гипсокартона является сложным и трудоемким процессом. Перед тем как сделать полку в ванную необычной конфигурации, предварительно следует подготовить шаблон из прочного материала. Для этого подойдет фанера, из которой вырезается криволинейная деталь. На нее будет впоследствии раскладываться гипсокартонный лист.
Для получения изогнутого элемента заготовка из гипсокартона обрабатывается игольчатым валиком, который проделывает в полости мелкие отверстия, и смачивается водой при помощи губки таким образом, чтобы жидкость вышла из каждого отверстия. Деталь должна пропитаться на протяжении 10 минут, однако гипсокартон не должен промокнуть полностью. Мокрый элемент накладывается на изогнутый шаблон и оставляется до высыхания.
Для создания каркаса используется специальный гибкий профиль. Обрешетка выполняется по принципу, изложенному выше. Однако вместо обычных профилей используются арочные элементы.

Изогнутые угловые полки в ванной комнате
Крепление криволинейной полки из гипсокартона в ванной своими руками происходит от самой высокой точки, постепенно двигаясь к краям. При этом саморезы должны располагаться с шагом не более 15 см.
Финишная отделка готовой конструкции происходит традиционным образом. Однако на внешние углы устанавливаются арочные уголки из пластика, которые поддаются деформации благодаря сечениям с одной стороны. Обычные перфорированные уголки для криволинейных конструкций не подойдут.
Гипсокартон – пользующийся популярностью современный материал
Особенности гипсокартонных конструкций
В современном строительстве таковой материал как гипсокартон – употребляют достаточно нередко, при строительстве разных конструкций внутренней отделки.
К тому же, следует увидеть, этот материал с каждым годом приобретает все огромную популярность в виду того, что:
- относительно малая стоимость;
- установка не вызывает особенных сложностей;
- очень комфортно транспортировать.

Повышенное внимание следует уделить нишам из гипсокартона в спальном помещении. Для того, чтоб установить нечто схожее, совершенно не непременно быть спецом высокого класса — довольно иметь в собственном арсенале:. Для того, чтоб установить нечто схожее, совершенно не непременно быть спецом высокого класса — довольно иметь в собственном арсенале:
Для того, чтоб установить нечто схожее, совершенно не непременно быть спецом высокого класса — довольно иметь в собственном арсенале:
- определенное количество профилей из металла;
- листы гипсокартона;
- болгарку (также подходят ножницы по металлу);
- электродрель;
- шуруповерт (либо отвертку);
- шурупы по металлу;
- карандаш;
- рулетку;
- отвес;
- арматурную ленту;
- клей;
- замазку и шпатель;
- строительный уровень.

Ниши в квартирах
В панельных квартирах ниши, сделанные из ГКЛ – это красивая возможность убрать все выпуклости, а для малеханьких квартир – визуально расширить место. Не считая того, спальные комнаты становятся более комфортными, не схожими на другие стандартные комнаты.
Схожими комфортабельными нишами может быть заполнять место:
- в зоне, где располагается телек;
- у изголовья дивана либо кровати.
Очень прекрасно смотрятся арочные углубления с подсветкой и ниши спальной комнаты по углам: из гипсокартона можно сконструировать конструкции хоть какой формы. Красиво будут смотреться в нишах, установленные там стеклянные полочки – они дадут роскошную воздушность помещению.
Подготовительные работы
Оформление ниши в стене спальни предполагает следующий алгоритм подготовки:
- выбрать место размещения конструкции;
- нарисовать чертеж. Лучше всего рисовать схему всего помещения с указанием параметров конструкции: глубины, высоты, ширины и высоты от пола. Здесь следует продумать все нюансы оформления, а также ее функциональную нагрузку;
- рассчитать количество необходимого для работы материала;
- подготовить рабочую поверхность – удалить все неровности со стен и прогрунтовать ее;
- нанести чертеж на стену. Сначала наносим разметку на пол, а затем на стены. Для точности и ровности нанесенных линий используйте уровень.
После этого можно начинать сам монтаж.
Нестандартное применение
Можно отказаться от приобретения корпусной мебели для гостиной, заменив ее весьма интересной и функциональной конструкцией. Оформите одну из стен в помещении декоративными нишами и полками, где можно будет поместить телевизор, домашнюю библиотеку, цветочные горшки, любимые семейные фотографии, детские игрушки, множество необходимых в быту предметов. Разнообразные ниши-полочки прекрасно впишутся в любое помещение вашего дома – будь то спальня, детская комната, кухня или прихожая. Такие конструкции помогают организовать пространство и зачастую становятся основными акцентами в помещениях.
Очень интересные решения можно воплощать в реальность и при обычной облицовке стен. Гипсокартон позволяет сделать практически любую имитацию. Можно, например, выложить в комнате целую кирпичную кладку, заменив тяжёлый силикатный кирпич легким гипсокартоном. В большой и просторной спальне можно соорудить настоящие колонны: так вы сможете превратить обычную комнату в дворцовые покои. Можно убрать все двери в квартире: оставьте арочные проёмы и украсьте их портьерами с ламбрекеном.
В больших залах будут прекрасно смотреться двухуровневые потолки из гипсокартона со скрытой подсветкой. Если в таком потолке соорудить дополнительную нишу для установки карниза для штор, который будет незаметным, создастся удивительное ощущение того, что ткань струится прямо из потолка. Если в помещении будет предусмотрено еще и интересное освещение, может получиться загадочная и чарующая атмосфера. Можно установить на стене короб с оригинальной подсветкой.
Преимущества и недостатки гипсокартона
Гипсокартон относят к категории универсальных материалов, имеющих различное назначение — из него делают перекрытия, ниши, всевозможные фигурные конструкции. Такая популярность обусловлена следующими преимуществами:
- ГКЛ легко поддается обработке, из него можно вырезать конструкции любых форм.
- Гипсокартон – это легкий материал. Конечно, при транспортировке цельных листов может показаться, что они слишком тяжелые. Тем не менее, готовые полки получаются невесомыми. К тому же, профильный каркас тоже не будет утяжелять конструкцию. Получается, что даже большая полка не перегружает несущую стену.
- По завершению всех работ делают отделку гипсокартонных полок — на этом этапе можно придать им необычный дизайн, благодаря чему они будут гармонично смотреться в любом интерьере.
- Даже со временем такие конструкции не деформируются и долго сохраняют свой первоначальный вид.
- Стоимость такого материала значительно ниже по сравнению с натуральной древесиной, пластиком или мебельными щитами.
Не обязательно использовать для изготовления полок цельные листы — подойдут и куски ГКЛ, которые могли остаться после монтажа перекрытий.
Конструкция из гипсокартона тоже может быть прочной
Несмотря на большое количество преимуществ такого материала, следует выделить и некоторые его недостатки:
- хрупкость;
- появление прогибов под воздействием большого груза;
- плохая устойчивость к влажности.
Полки в ванной из гипоскартона: особенности конструкции
Проектировка и сборка полок из гипсокартона
Изначально нужно сделать проект будущих полок, на котором указать размеры мебели, количество перекрытий, варианты каркаса. По этой схеме потом можно подсчитать необходимое количество материала.
Проект
Следует в первую очередь прикинуть те нагрузки, которые будут создаваться на полки из гипсокартона. Панели сами по себе довольно хрупкие и их нужно монтировать с каркасом.Проект и чертеж с размерами полки из гипсокартона
Основание под обшивку зависит от назначения полок, декоративные варианты можно собирать с обычных металлических профилей для ГКЛ. Но, если на подобные подставки будет устанавливаться массивная бытовая техника, то лучше собрать каркас со стального уголка, который легко выдержит подобную нагрузку.Проектирование полок в спальне из ГКЛ Различные варианты полок можно начертить на бумаге и приложив на стене, выбрать наиболее подходящие типы.Готовые проекты полок из гипсокартона Небольшие полки можно смоделировать, например, с упаковочного картона, в масштабе 1:1, чтобы иметь точное представление о выбранном варианте и его габаритах
Важно, на стадии закупки материала приобрести лист ГКЛ толщиной 12,5 мм, более тонкие образцы для полок желательно не покупать.Пример конструкции полок в комнатеВариант дизайна и оформления спальни
Сборка каркаса
Вариантов выполнения полок может быть два: сборка непосредственно на месте либо изготовить основание полностью, а уже потом закрепить его на нужном участке стены.Процесс сборки каркаса угловых полок в спальне Каркас создают по такому принципу:
- Монтируют на поверхность направляющие UD профили, которые будут выполнять функцию основы под дальнейшую сборку. Крепеж обеспечивают подходящими метизами (дюбели-гвозди не всегда подходят!).
- В установленные направляющие вставляют стойки и фиксируют их саморезами для профиля. По возможности и необходимости, вертикальные рейки соединяют с основными стенами прямыми подвесами.
- Между вертикальными стоечными профилями крепят горизонтальные, формируя именно будущие полки. Также на этом этапе следует установить необходимое количество поперечных реек из того же стоечного профиля.
Готовый каркас следует проверить с применением строительного уровня и столярного уголка. Ведь в процессе сборки возможны перекосы.
После чего можно приступать к обшивке полок гипсокартонными заготовками.
Смотрите в видео обзор изготовления полки из гипсокартона.
Обшивка ГКЛ
Из листов гипсокартона выкраивают необходимые по параметрам заготовки. Резку делают ножом для ГКЛ (строительным или канцелярским), по отметкам сначала надрезают картон с одной стороны, потом с другой, после чего отламывают деталь и выравнивают ее торец.Процесс обшивки гипсокартонных полок в спальне Заготовки укладываются на каркас и привинчиваются саморезами для гипсокартона длиной 18-20 мм. Шляпки слегка вдавливают в поверхность, но без прорыва оболочки. Если нужно, то гипсовый материал изгибают сухим либо мокрым способом.
После чего заготовку кладут на каркас и постепенно, изгибая, фиксируют ее саморезами.Пример крепления листов гипсокартона саморезами
Готовое изделие из гипсокартона грунтуют и покрывают слоем шпатлевки, потом можно осуществлять любой тип чистовой отделки: покраску ГКЛ, укладку плитки , декоративное оштукатуривание конструкции и прочие. Если нужно, можно обустроить подсветку в комплексе с полками, для чего подходят точечные светильники или светодиодные ленты. Под них, внутри каркаса, прокладывают проводку с выводами для розеток и выключателей.
Изготовленные таким образом стеллажи прослужат длительную службу по срокам, не уступающим традиционным вариантам мебели.
Самостоятельные и встроенные полки из гипсокартона: что предпочтем?
Полки могут быть исполнены как в виде отдельного предмета мебели, так и в виде встроенной в стену конструкции, что-то наподобие ниши. Делая выбор в ту или иную сторону, нужно руководствоваться своим художественным вкусом, рассматривая и учитывая метраж и конфигурацию комнаты и наполнение ее мебелью.
В противоположность этому, встроенные полки как бы высвобождают некоторую площадь комнаты, но в силу особенности конструкции не могут быть большими и глубокими. Кроме того, раз помещенные в одном месте, они не могут быть передвинуты. Разумеется, встроенная мебель вообще предпочтительна для малых, тесных помещений.
Ниша из гипсокартона в спальне – как сделать
Помните, что для маленького помещения лучше всего использовать светлые тона, тогда визуально оно будет казаться больше. Подумайте, какое изображение вы хотели бы видеть на стене. Это может быть японский садик, нежные цветы или современная абстракция. К тому же, можно заказать фотообои с совершенно любым рисунком или выбрать что-то из вариантов, предлагаемых фирмой по изготовлению фотообоев.Если вы планируете делать нишу под телевизор, то сделайте ее немного больше самого прибора, это позволит свободно подключить его и обеспечит циркуляцию воздуха, необходимую для безопасной работы.
При расчетах важно учитывать толщину самого гипсокартона и профилей. Конечно, лучше взять материала с запасом, на тот случай, если вы немного ошибетесь
- Для двуспальной кровати, она ставится перпендикулярно стене.
- Для односпальной (детской или подростковой) кровати, которая располагается вдоль стены.
Безусловно, свет в нише придаст спальному месту еще больше уюта. Подумайте, какую функцию он будет нести. Если вы любите почитать перед сном, то учтите, что освещение должно быть достаточно яркими и в то же время приятным для глаз. Также, свет бывает чисто декоративным.
Вы можете сделать его цветным: используйте для этого светодиодную ленту. Ее можно заложить в углубление над кроватью или пустить по периметру потолка. Гармонично будет смотреться и подсветка внутри полок. Она тоже может быть цветной. При выборе подсветки не забудьте, что для спальни лучше выбрать теплый свет.
Учтите, что вы будете его видеть каждый вечер перед сном и включать при необходимости ночью.
Как сделать полку из гипсокартона своими руками
Определившись с типом изделия, можно приступать к изготовлению. Рассмотрим этот процесс подробнее.
Чертежи и схемы сборки
Первым этапом изготовления изделия является создание чертежа. В нем нужно отразить внешний вид, точные размеры, инструменты и пошаговое выполнение работ. При помощи эскиза намного проще осуществлять монтаж.
Размер и количество полок можно определить самостоятельно, учитывая габариты уже имеющейся техники.
Составить чертеж можно самостоятельно на миллиметровой бумаге или просто на листе А4. Также можно воспользоваться специальной программой на компьютере, которая поможет создать правильный и четкий рисунок. Можно прибегнуть к помощи Интернета.
Можно вмонтировать дополнительно настенные или точечные светильники, светодиодные лампы и ленты.
Подготовка стены
Для того, чтобы изделие было прочным и качественным, нужно подготовить стену, к которой будет крепиться сооружение.
Перед началом проведения монтажных работ по изготовлению гипсокартонных полок, потребуется подготовить стены.
Для начала нужно удалить старое покрытие. Это могут быть обои, слой шпаклевки и так далее. Если в стене есть какие-либо дефекты, то их нужно устранить. Для этого все трещины и шероховатости заполняются пеной или шпаклевкой. Покройте стену специальным раствором для большей прочности.
После того, как раствор высохнет, стену необходимо покрыть грунтовкой.
Стены лучше обработать несколькими слоями грунтовки, чтобы они в дальнейшем не осыпались.
Теперь можно приступить непосредственно к изготовлению полки.
Важно продумать внешний вид полок, функциональность, рассчитать размер и весовую нагрузку
Процесс монтажа полок из профиля
Первоначально нужно определиться с формой, размещением и тем, будет ли встроена подсветка, так как это оказывает непосредственное влияние на общую конструкцию.
Каркасом всей конструкции выступает профиль из дерева или металла. Если полка будет использоваться как хранилище для вещей, то ее нужно максимально укрепить. Если же у нее только декоративное предназначение, то укрепление не нужно.
Монтаж начинают с возведения каркаса из металлического профиля, который крепят к стене на дюбель-гвозди.
Для изготовления понадобятся следующие материалы и инструменты:
- Строительный нож;
- Ножницы для металла (если его использование предусмотрено);
- Карандаш или маркер;
- Уголок;
- Отвес;
- Саморезы;
- Дюбеля;
- Гипсокартон;
- Шуруповерт;
- Дрель;
- Лента для армирования;
- Шпатель;
- Шпаклевка;
- Грунтовка.
Для обработки понадобятся краска, обои, клей и защитное покрытие.
Теперь рассмотрим этапы проведения работ. Для начала нужно смонтировать каркас. В качестве материала можно взять древесину или сваренный в единое металл. Полки крепятся при помощи дюбелей из металла для большей надежности.
Все части каркаса закрепляются между собой на саморезы. Необходимо тщательно затягивать крепления, чтобы основа получилась прочной.
Дальше нужно саморезами прикрепить листы гипсокартона. Теперь нужно приступить к шпаклевке. Готово.
При необходимости можно установить подсветку: для этого нужно привлекать светодиоды при помощи шурупов. Также можно провести декорирование поверхности краской или узорами. Узоры можно изготовить также из гипсокартона.
Используя специальные саморезы, нужно присоединить к основанию верхние и нижние листы. Для таких целей лучше брать саморезы диаметром в 2,5 сантиметра.
Полки из гипсокартона отлично вписываются практически в любой интерьер, придают ему изюминки. Для самостоятельного изготовления необходимо следовать инструкции и четко соблюдать чертеж.
Дизайн полок бывает различным, здесь каждый человек сможет проявить свою фантазию.
Как оформить нишу
Во многих планировках можно встретить нишу. Кто-то считает это изъяном помещения и начинает ломать голову: как же ее оформить. По мнению профессиональных дизайнеров, ниша – это бонус владельцам апартаментов. Ведь с ее помощью можно не просто сделать уникальный в своем роде интерьер, но еще и добавить помещению функциональности, особенно, если квартира невелика. Итак, что же делать с нишей? Один из вариантов: разместите в нише диван или кровать.
Интимная ниша из гипсокартона и кровать в ней – идеальное решение для небольшого помещения.
Не всегда помещение имеет проемы в стене, поэтому при желании сделать перегородки можно из гипсокартона. Главное использовать каждый сантиметр пространства, вокруг диванчика можно оборудовать полочки, и расставить на них книги или сувениры.
Даже если ниша совсем небольшая и оборудовать полноценное спальное место не получится, все равно, соорудите небольшой диванчик. Для этого вам потребуется матрас и пара подушек.
Поскольку пространство в нише будет более темным, чем в основном помещении, позаботьтесь о дополнительной подсветке.
Если так получилось, что в нише имеется окошко, пусть самое маленькое, – поверьте, вам крупно повезло. Хотя дополнительное освещение все равно придется делать, зато вам гарантирована необычная уютная атмосфера.
Полки в нише
Справедливости ради стоит отметить, что владельцы квадратных метров с нишами предпочитают оборудовать их под систему хранения. Это решение считается более правильным и приближенным к реалиям жизни. А как сделать полки в нише своими руками?
Полки можно сделать из дерева, фанеры, фанерованной шпоном ДСП, покрыть морилкой или покрасить.
На самом деле, простая классическая конструкция изготавливается предельно просто. Особенно если учесть, что вам не нужно создавать боковые части. В строительном магазине приобретите доску, потом разрежьте ее на фрагменты нужного вам размера. Полученные деревянные полки хорошо отшлифуйте. Это можно сделать либо при помощи наждачной бумаги, либо с помощью шлифовальной машинки. После этого покройте доски грунтовкой, а затем краской или лаком.
Для установки полок на место чаще всего на торцевые части ниши крепят держатели или небольшие кронштейны.
Ниши — идеальное место для встроенных полок и стеллажей, поскольку стены ниши обеспечивают требуемую опору, особенно для тяжелых грузов.
Если вам хочется сделать полки закрытыми, и желаемая модель предполагает наличие дверок, то лучше обратиться к специалистам, так как, не имея определенных навыков сложно справиться с такой конструкцией.
Выбираем стиль
Казалось бы, полка – самая простая деталь интерьера, однако, для того, чтобы общий вид был достойным, важно, чтобы полочки были выдержаны в конкретном стилистическом решении
- Классика. Для этого стиля характерно использование натуральных материалов. Поэтому лучше, если полочки будут изготовлены из натурального дерева. Конструкции могут крепиться к стене, или располагаться в нише (если таковая имеется).
Цветовое решение должно либо вторить общей палитре, либо, наоборот, стать ярким акцентом в интерьере.Выбирая форму, отдайте предпочтение обычным прямоугольным конструкциям. В качестве декора можно использовать резьбу.
- Модерн. Для современных дизайнерских решений в этом стиле лучше всего подойдут настенные модели закрытого застекленного типа. Неплохо дополняют интерьер матовые или прозрачные полки с разноцветными вставками или подсветкой.
Благодаря таким декоративным хитростям, интерьер получается уникальным в своем роде и очень уютным.
- Прованс. Французский деревенский стиль прекрасно дополняется деревянными конструкциями. Просто выкрасите полку в светлые тона и слегка состарьте.
Для любой комнаты важно наличие полок. С их помощью не просто увеличивается функциональность пространства, оно становится более уютным и стильным. А грамотное оформление имеющейся ниши позволит сделать комнату уникальной в своем роде, независимо от того, что вы в ней расположите: полки или диванчик
Типы ниш по другим параметрам
Дизайнеры выделяют ещё несколько параметров, по которым проводится оценка строительного алькова: форма, высота, количество ярусов. На сегодняшний день появилось достаточно много разновидностей декоративных и истинных альковов:
- От пола до потолка.
- На определенном расстоянии от уровня пола.
- Единые альковы (без деления на ярусы).
- Многоуровневые модели. На каждом этаже могут быть расположены предметы декора, миниатюрные настольные лампы, сувениры.
По своей форме все ниши делятся на классические прямоугольные, полукруглые, в виде трапеции, удлиненные или квадратные альковы.





































